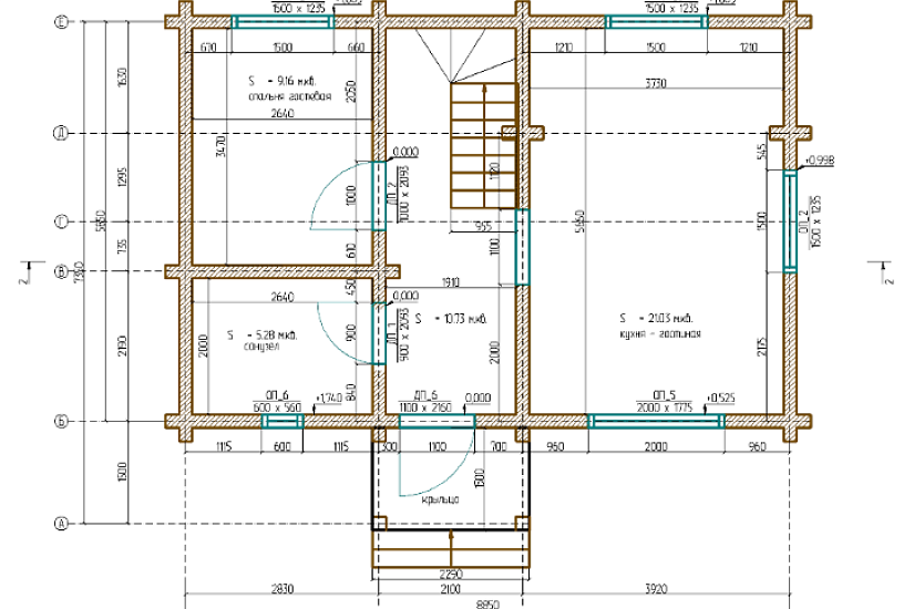
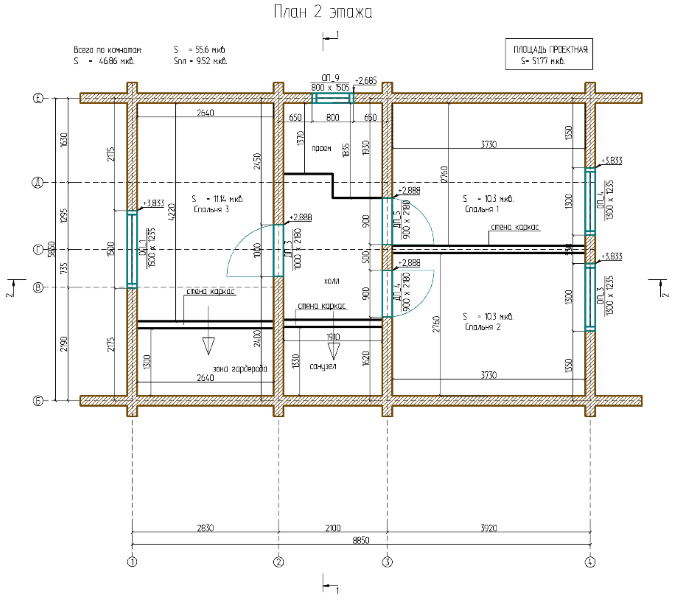
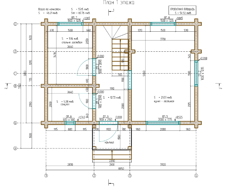
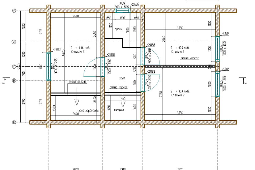
Характеристики
-
Тип строенияБаня
-
МатериалБрус
-
Тип фундаментаНа винтовых сваях
-
Площадь93.1
-
Этажность1,5
-
Габариты8850х7350
-
БалконНет
-
Второй светНет
-
ГаражНет
-
МансардаДа
-
Сауна/БассейнДа
-
ТеррасаНет
-
Цокольный этажНет












