Характеристики
-
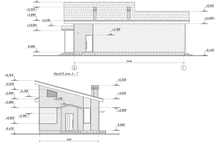
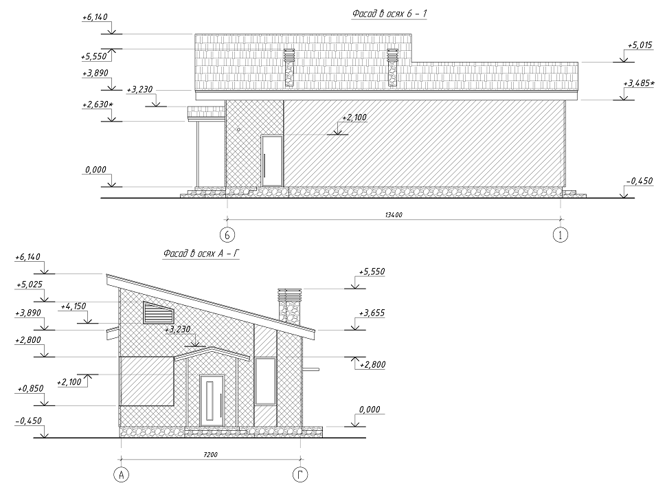
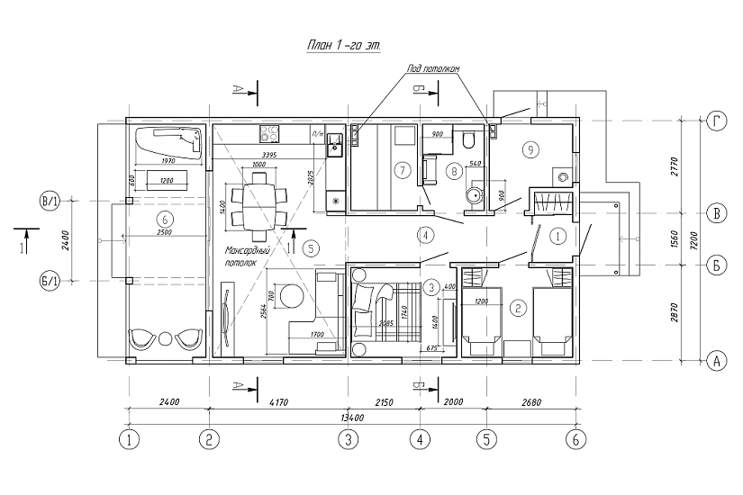
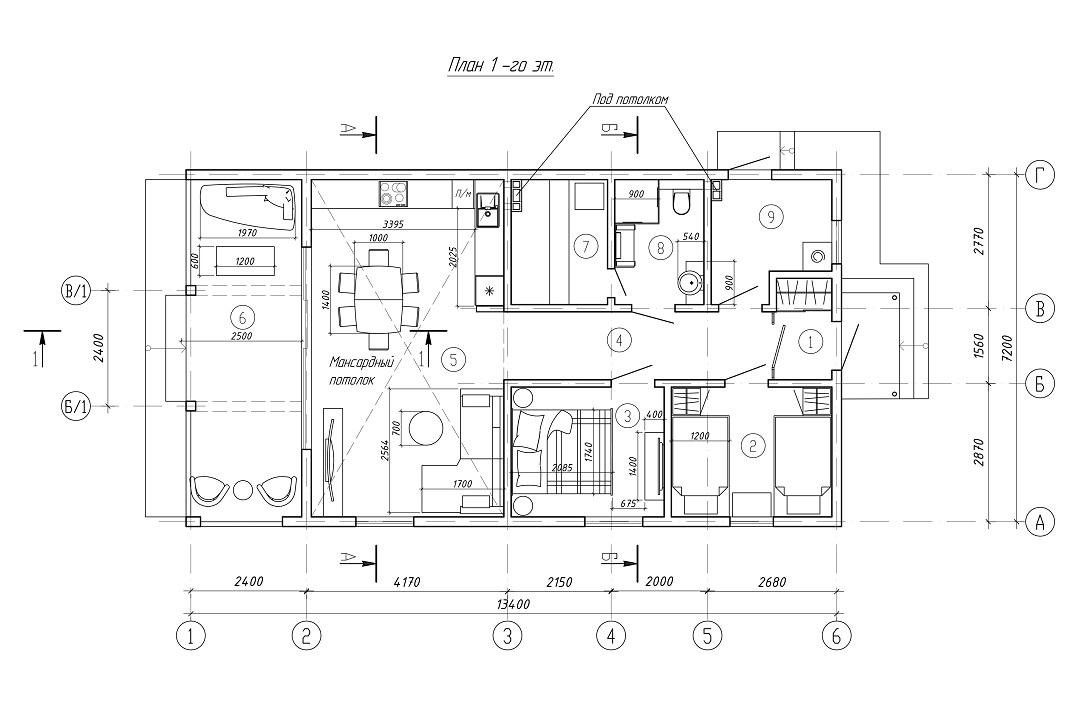
Тип строенияЖилой дом
-
МатериалДеревянный каркас
-
Тип фундаментаНа винтовых сваях
-
Площадь89
-
Этажность1
-
Габариты7200х13400
-
БалконНет
-
Второй светНет
-
ГаражНет
-
МансардаНет
-
Сауна/БассейнДа
-
ТеррасаНет
-
Цокольный этажНет




