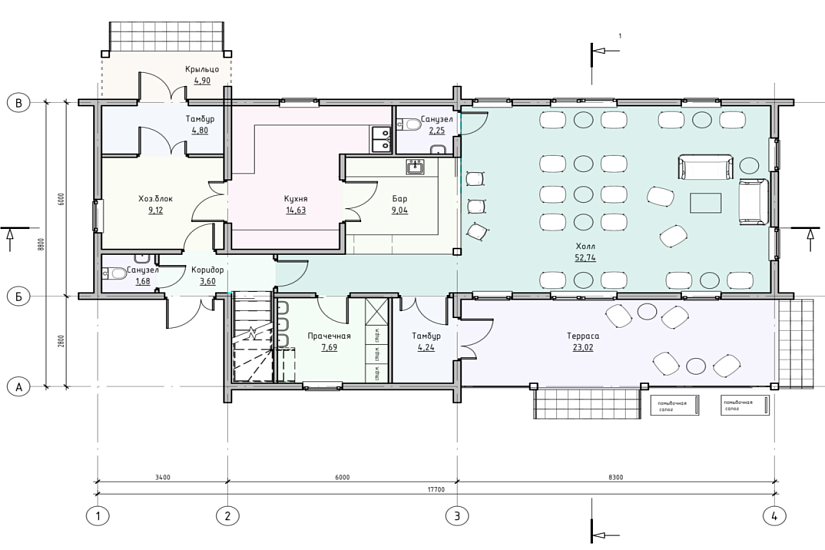
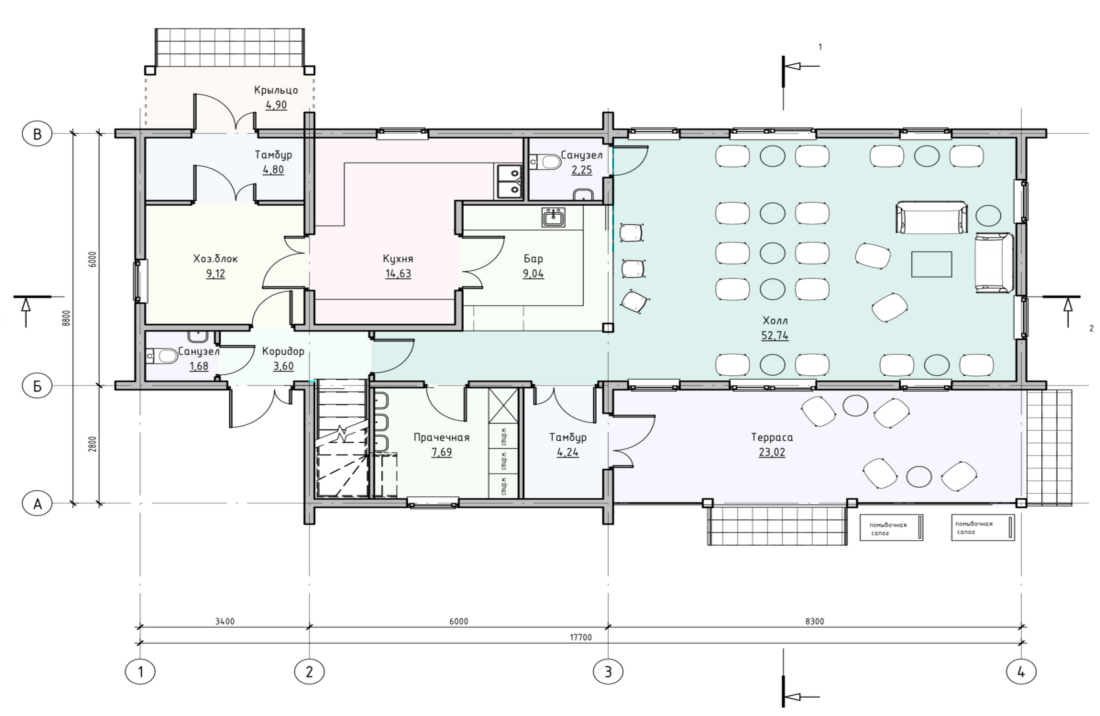
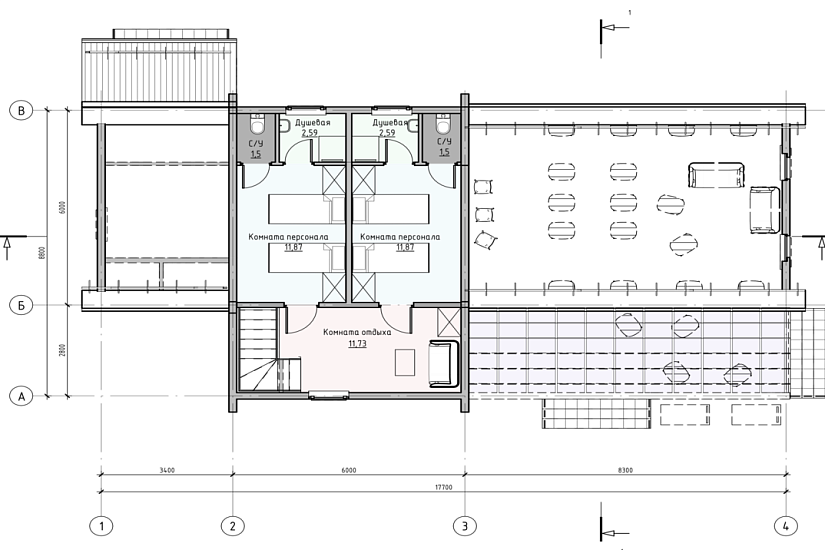
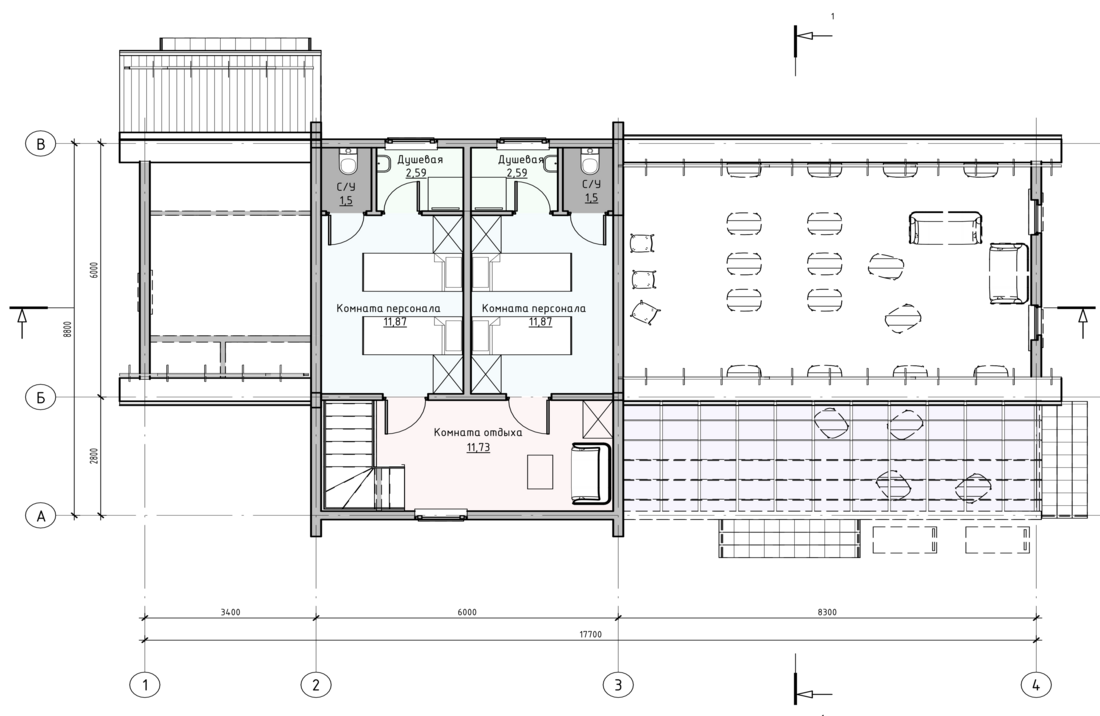
Характеристики
-
Тип строенияПрочие строения
-
МатериалДеревянный каркас
-
Тип фундаментаНа винтовых сваях
-
Площадь181,5
-
Этажность2
-
Габариты8800х17700
-
БалконНет
-
Второй светНет
-
ГаражНет
-
МансардаНет
-
Сауна/БассейнНет
-
ТеррасаДа
-
Цокольный этажНет






