Характеристики
-
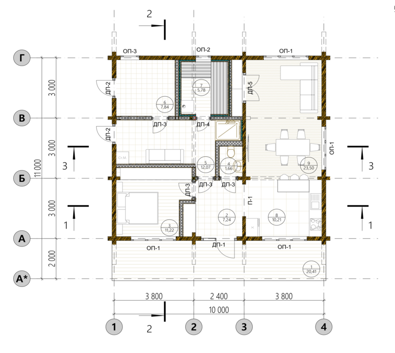
Тип строенияЖилой дом
-
МатериалБрус
-
Тип фундаментаНа винтовых сваях
-
Площадь99
-
Этажность1
-
Габариты11000х10000
-
БалконНет
-
Второй светНет
-
ГаражНет
-
МансардаНет
-
Сауна/БассейнДа
-
ТеррасаНет
-
Цокольный этажНет





