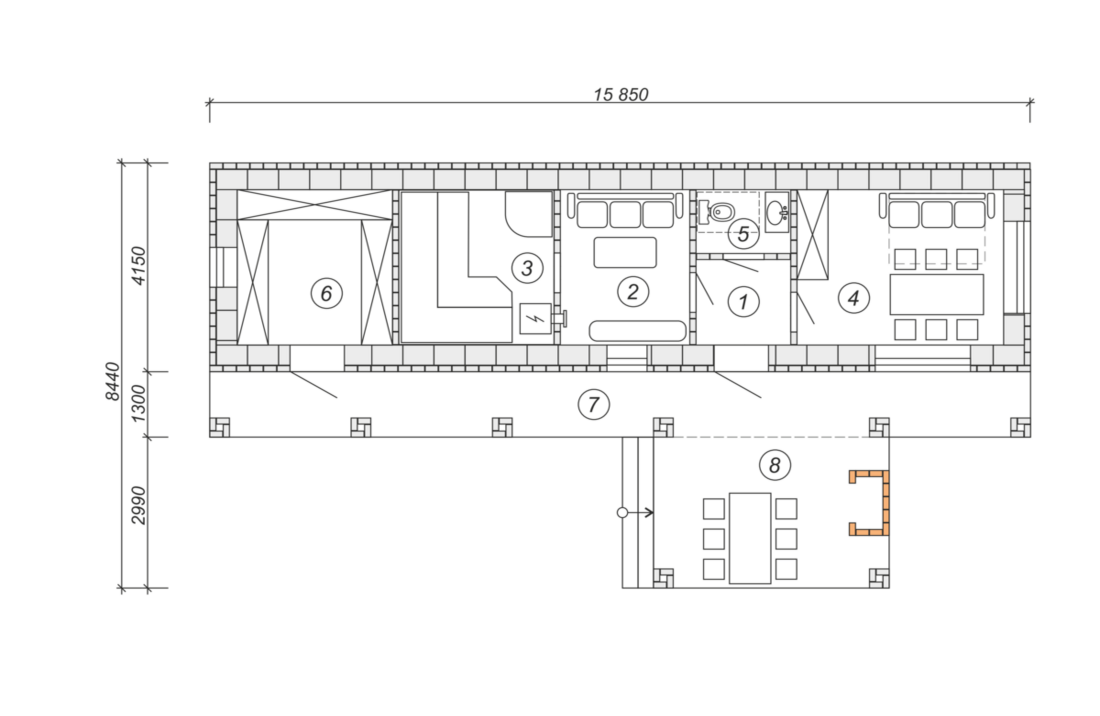
Характеристики
-
Тип строенияБаня
-
МатериалГазосиликат
-
Тип фундаментаНа винтовых сваях
-
Площадь44
-
Этажность1
-
Габариты8440*15850
-
БалконНет
-
Второй светНет
-
ГаражНет
-
МансардаНет
-
Сауна/БассейнДа
-
ТеррасаДа
-
Цокольный этажНет





