Характеристики
-
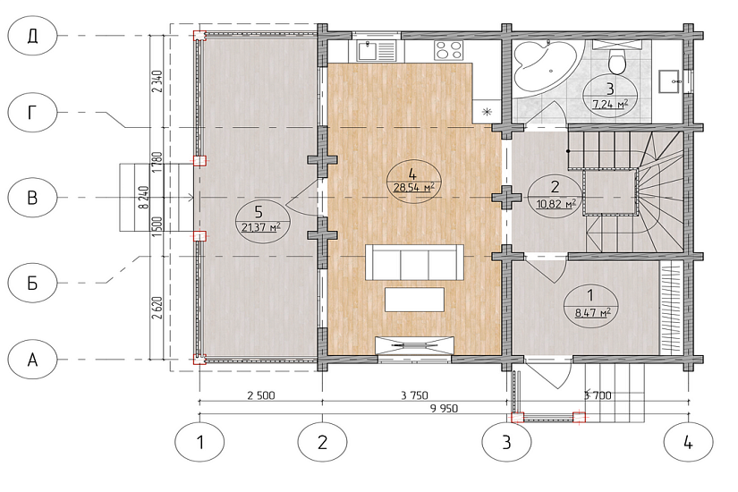
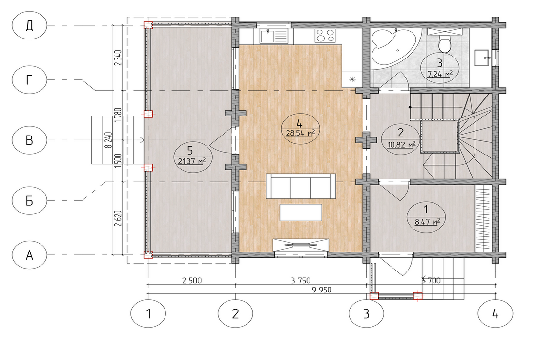
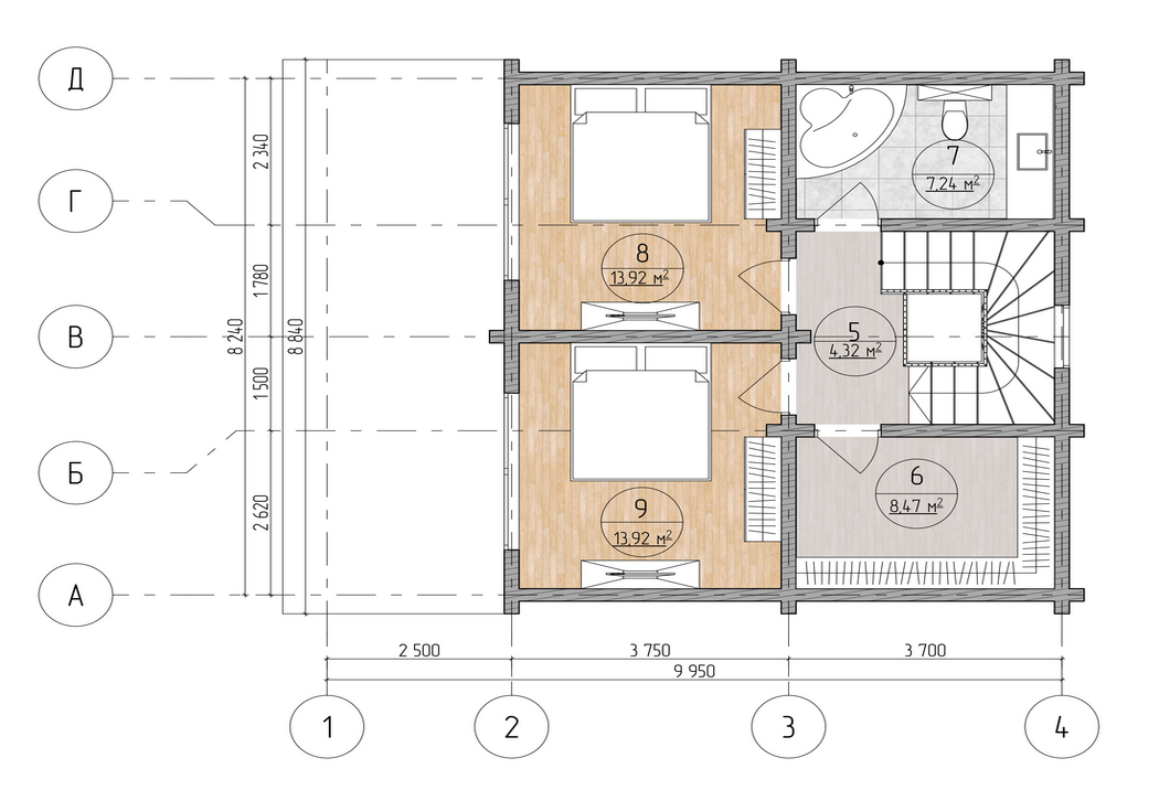
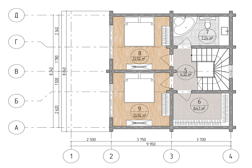
Тип строенияЖилой дом
-
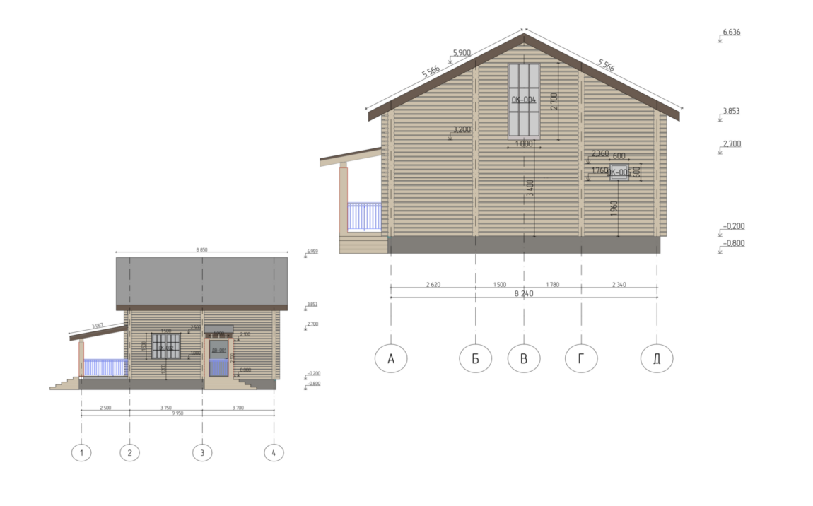
МатериалБрус
-
Тип фундаментаНа винтовых сваях
-
Площадь124
-
Этажность1,5
-
Габариты8240х9950
-
БалконНет
-
Второй светНет
-
ГаражНет
-
МансардаДа
-
Сауна/БассейнНет
-
ТеррасаДа
-
Цокольный этажНет






