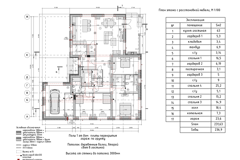
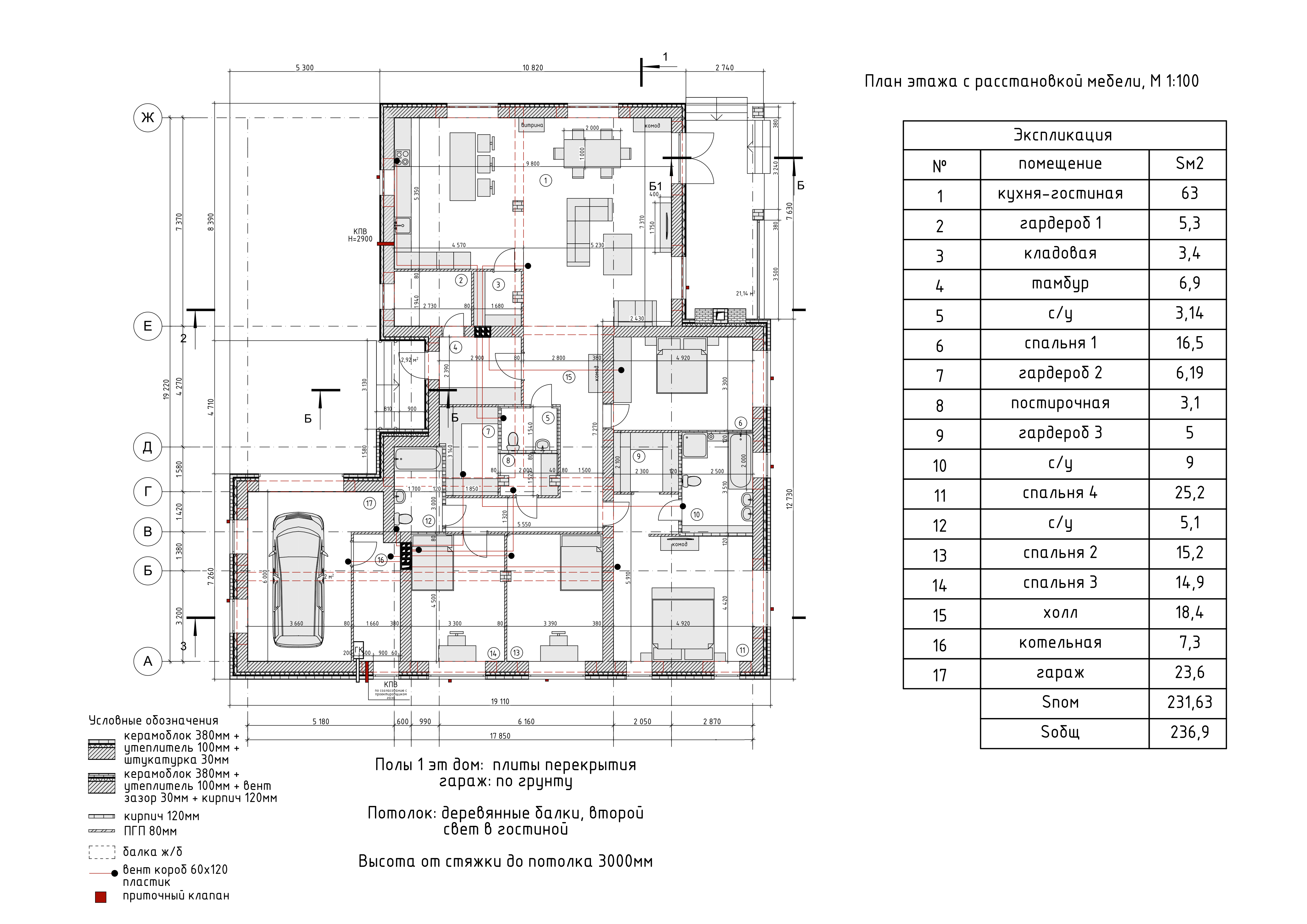
Характеристики
-
Тип строенияЖилой дом
-
МатериалКерамзитобетон
-
Тип фундаментаНа винтовых сваях
-
Площадь231,23
-
Этажность1
-
Габариты17850х19220
-
БалконНет
-
Второй светНет
-
ГаражДа
-
МансардаНет
-
Сауна/БассейнНет
-
ТеррасаДа
-
Цокольный этажНет





