Проект предоставлен партнером:
БРУСНИКА /
sk-brusnika.ru
Характеристики
-
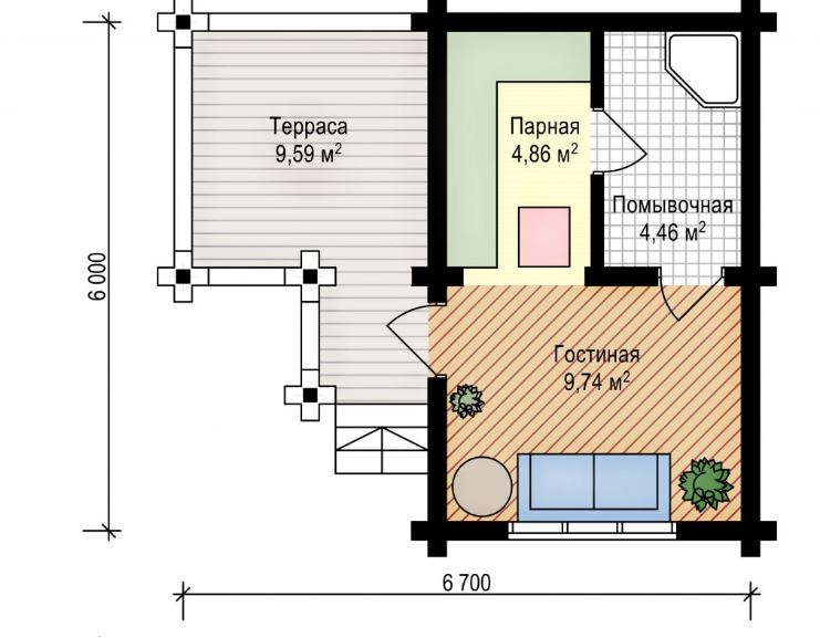
Тип строенияБаня
-
МатериалБрус
-
Тип фундаментаНа винтовых сваях
-
Площадь36
-
Этажность1
-
Габариты6000х6700
-
БалконНет
-
Второй светНет
-
ГаражНет
-
МансардаНет
-
Сауна/БассейнНет
-
ТеррасаДа
-
Цокольный этажНет


