Характеристики
-
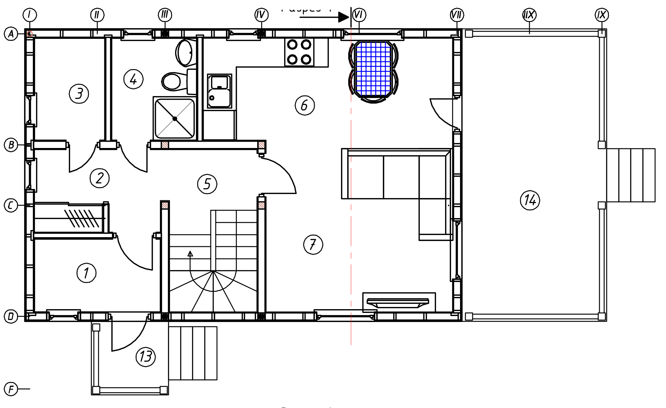
Тип строенияЖилой дом
-
МатериалКа-панель
-
Тип фундаментаНа винтовых сваях
-
Площадь108
-
Этажность1,5
-
Габариты8850х6000
-
БалконНет
-
Второй светНет
-
ГаражНет
-
МансардаДа
-
Сауна/БассейнНет
-
ТеррасаДа
-
Цокольный этажНет






