Проект предоставлен партнером:
Русский дом /
rudom-pro.ru/
Характеристики
-
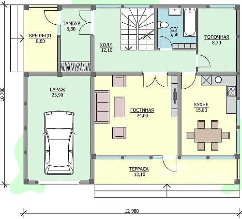
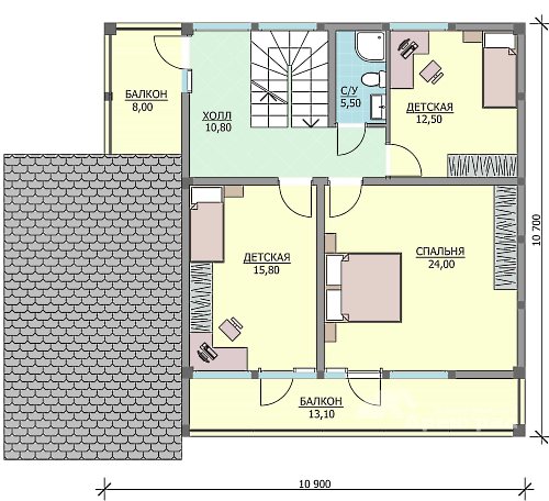
Тип строенияЖилой дом
-
МатериалДеревянный каркас
-
Тип фундаментаНа винтовых сваях
-
Площадь218
-
Этажность1,5
-
Габариты12900х10700
-
БалконДа
-
Второй светНет
-
ГаражДа
-
МансардаДа
-
Сауна/БассейнНет
-
ТеррасаДа
-
Цокольный этажНет


