Проект предоставлен партнером:
Русский дом /
rudom-pro.ru/
Характеристики
-
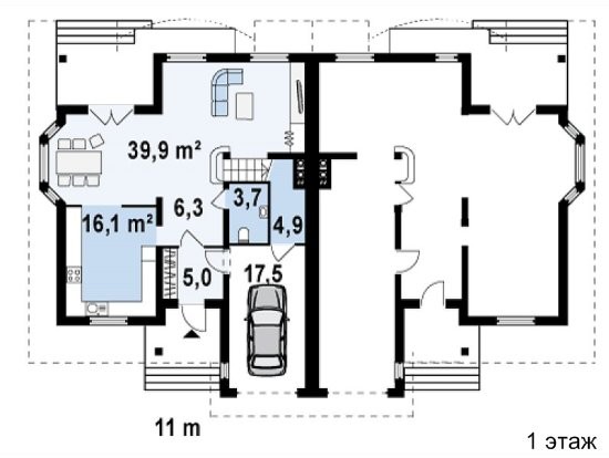
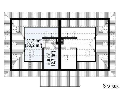
Тип строенияЖилой дом
-
МатериалКирпич
-
Тип фундаментаНа винтовых сваях
-
Площадь223,3
-
Этажность3
-
Габариты13100х12300
-
БалконДа
-
Второй светНет
-
ГаражДа
-
МансардаНет
-
Сауна/БассейнНет
-
ТеррасаДа
-
Цокольный этажНет



