Проект предоставлен партнером:
Русский дом /
rudom-pro.ru/
Характеристики
-
Тип строенияЖилой дом
-
МатериалКирпич
-
Тип фундаментаНа винтовых сваях
-
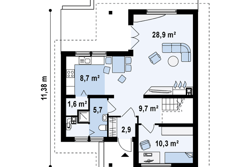
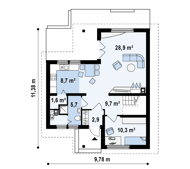
Площадь182,6
-
Этажность1,5
-
Габариты11400х9800
-
БалконНет
-
Второй светНет
-
ГаражНет
-
МансардаДа
-
Сауна/БассейнНет
-
ТеррасаДа
-
Цокольный этажНет




