Проект предоставлен партнером:
Русский дом /
rudom-pro.ru/
Характеристики
-
Тип строенияЖилой дом
-
МатериалГазосиликат
-
Тип фундаментаНа винтовых сваях
-
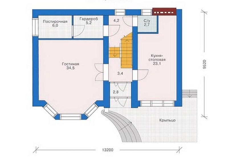
Площадь158
-
Этажность2
-
Габариты13200х9500
-
БалконДа
-
Второй светНет
-
ГаражНет
-
МансардаНет
-
Сауна/БассейнНет
-
ТеррасаНет
-
Цокольный этажНет




