Проект предоставлен партнером:
Русский дом /
rudom-pro.ru/
Характеристики
-
Тип строенияЖилой дом
-
МатериалКлееный брус
-
Тип фундаментаНа винтовых сваях
-
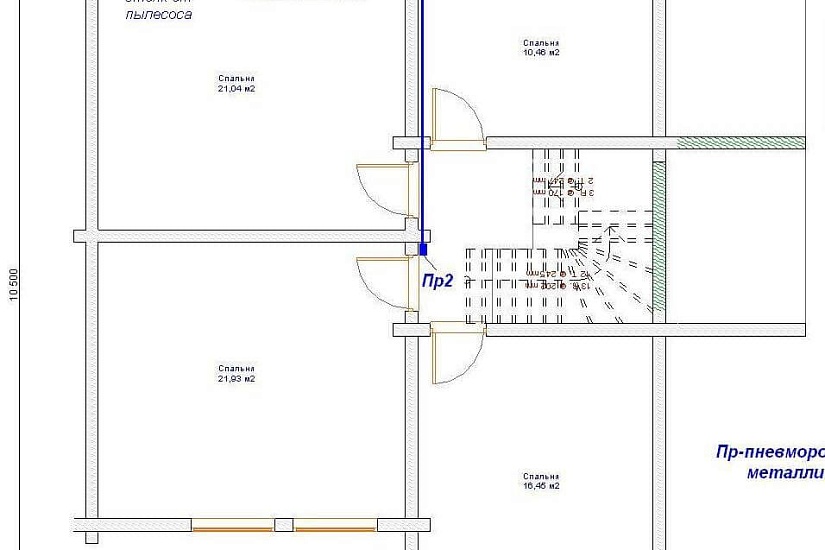
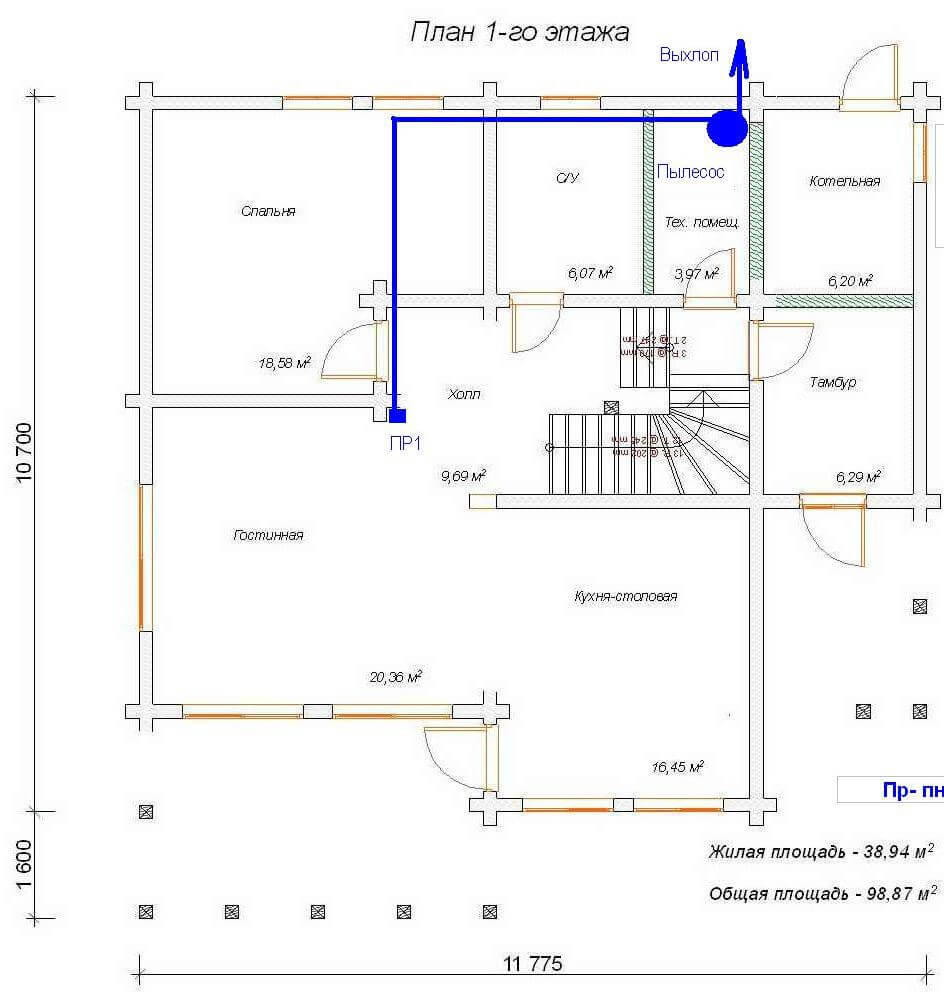
Площадь98,8
-
Этажность1,5
-
Габариты11800х10700
-
БалконНет
-
Второй светНет
-
ГаражНет
-
МансардаДа
-
Сауна/БассейнНет
-
ТеррасаДа
-
Цокольный этажНет



