Проект предоставлен партнером:
Русский дом /
rudom-pro.ru/
Характеристики
-
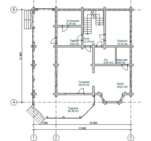
Тип строенияЖилой дом
-
МатериалОцилиндрованное бревно
-
Тип фундаментаНа винтовых сваях
-
Площадь238
-
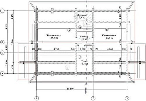
Этажность1,5
-
Габариты13000х12400
-
БалконНет
-
Второй светНет
-
ГаражНет
-
МансардаДа
-
Сауна/БассейнНет
-
ТеррасаДа
-
Цокольный этажНет




