Проект предоставлен партнером:
Русский дом /
rudom-pro.ru/
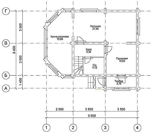
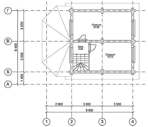
Характеристики
-
Тип строенияЖилой дом
-
МатериалОцилиндрованное бревно
-
Тип фундаментаНа винтовых сваях
-
Площадь101
-
Этажность1,5
-
Габариты9900х8400
-
БалконНет
-
Второй светНет
-
ГаражНет
-
МансардаДа
-
Сауна/БассейнНет
-
ТеррасаНет
-
Цокольный этажНет




