Проект предоставлен партнером:
Русский дом /
rudom-pro.ru/
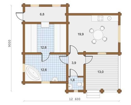
Характеристики
-
Тип строенияБаня
-
МатериалПроф. брус
-
Тип фундаментаНа винтовых сваях
-
Площадь74,7
-
Этажность1
-
Габариты12600х9000
-
БалконНет
-
Второй светНет
-
ГаражНет
-
МансардаНет
-
Сауна/БассейнНет
-
ТеррасаДа
-
Цокольный этажНет



