Проект предоставлен партнером:
Русский дом /
rudom-pro.ru/
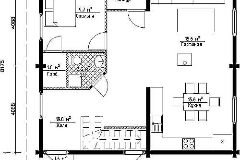
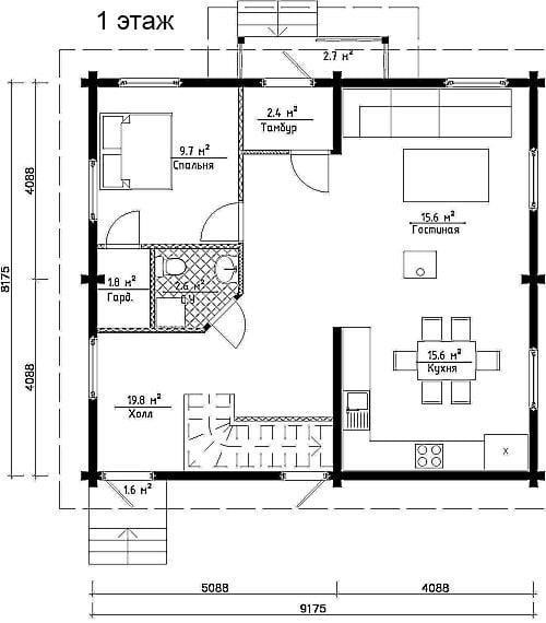
Характеристики
-
Тип строенияЖилой дом
-
МатериалПроф. брус
-
Тип фундаментаНа винтовых сваях
-
Площадь140,4
-
Этажность1,5
-
Габариты9200х8200
-
БалконДа
-
Второй светНет
-
ГаражНет
-
МансардаДа
-
Сауна/БассейнНет
-
ТеррасаНет
-
Цокольный этажНет




