Характеристики
-
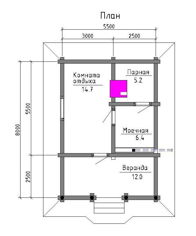
Тип строенияБаня
-
МатериалБрус
-
Тип фундаментаНа винтовых сваях
-
Площадь38,3
-
Этажность1
-
Габариты8000х5500
-
БалконНет
-
Второй светНет
-
ГаражНет
-
МансардаНет
-
Сауна/БассейнНет
-
ТеррасаНет
-
Цокольный этажНет

