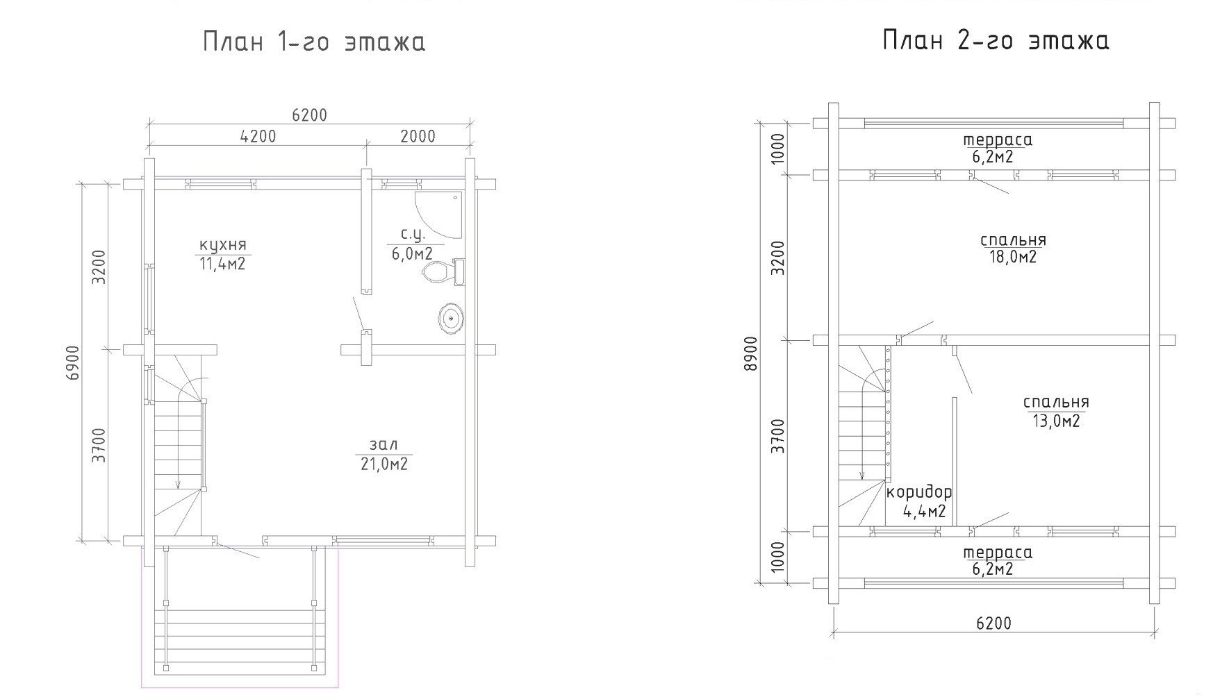
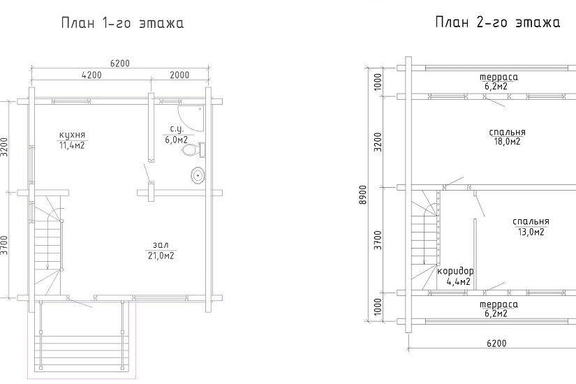
Характеристики
-
Тип строенияЖилой дом
-
МатериалБревно
-
Тип фундаментаНа винтовых сваях
-
Площадь98
-
Этажность1,5
-
Габариты6900х6200
-
БалконДа
-
Второй светНет
-
ГаражНет
-
МансардаДа
-
Сауна/БассейнНет
-
ТеррасаНет
-
Цокольный этажНет

