Характеристики
-
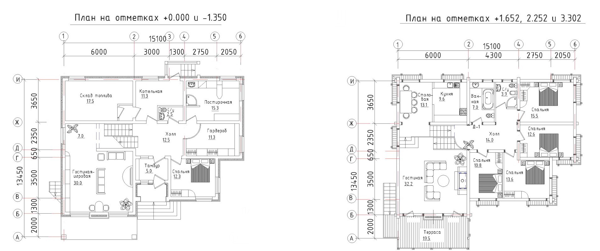
Тип строенияЖилой дом
-
МатериалБревно
-
Тип фундаментаНа винтовых сваях
-
Площадь306
-
Этажность2
-
Габариты13450х15100
-
БалконНет
-
Второй светНет
-
ГаражНет
-
МансардаНет
-
Сауна/БассейнНет
-
ТеррасаДа
-
Цокольный этажНет

