Проект предоставлен партнером:
"ООО "Солнечный - строительная компания" /
ssk54.ru/
Характеристики
-
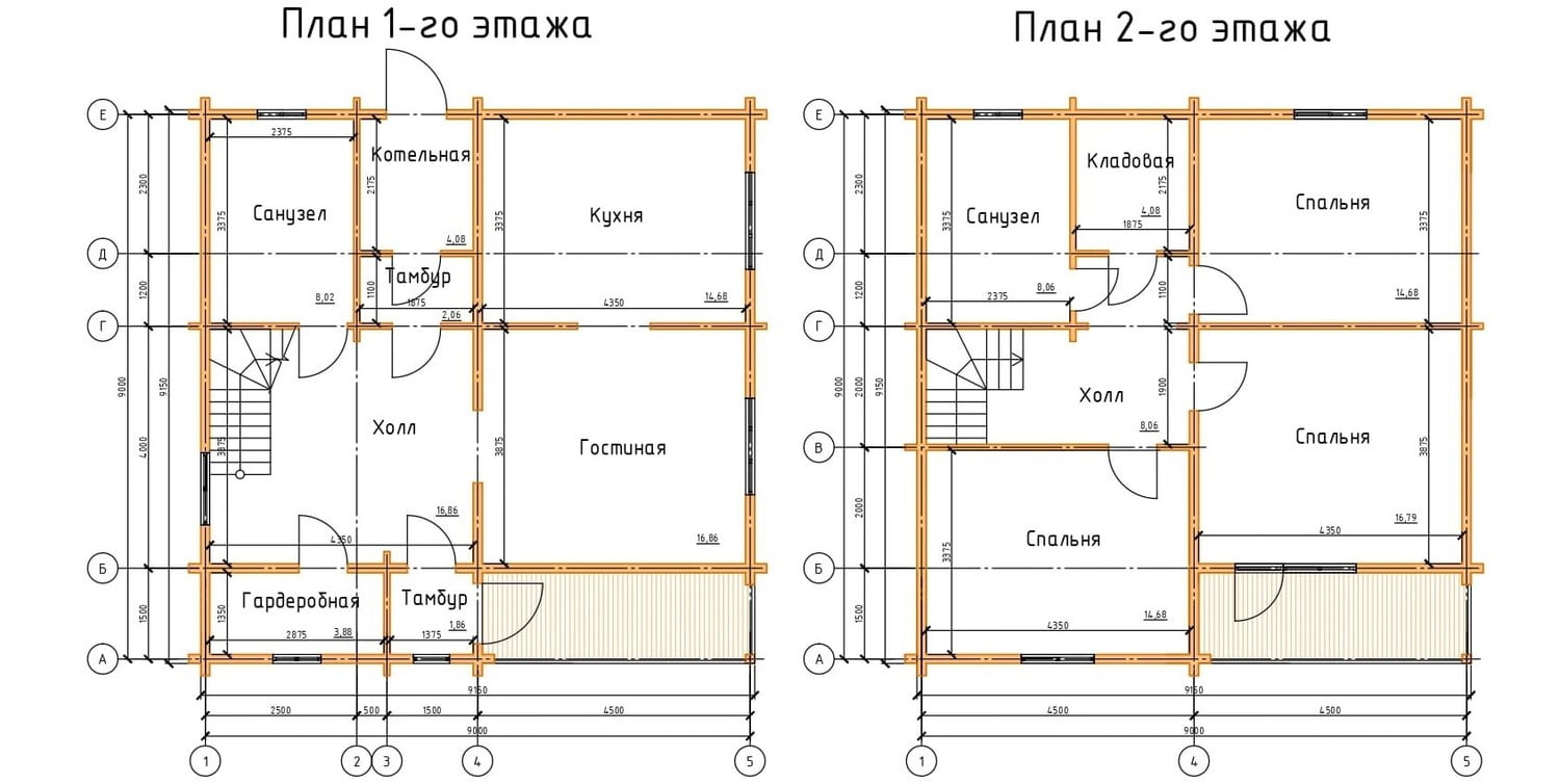
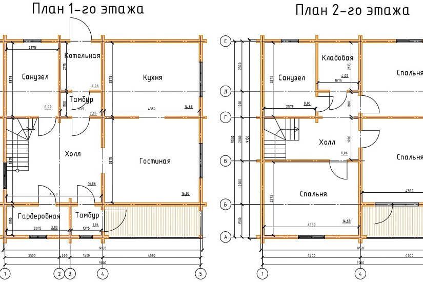
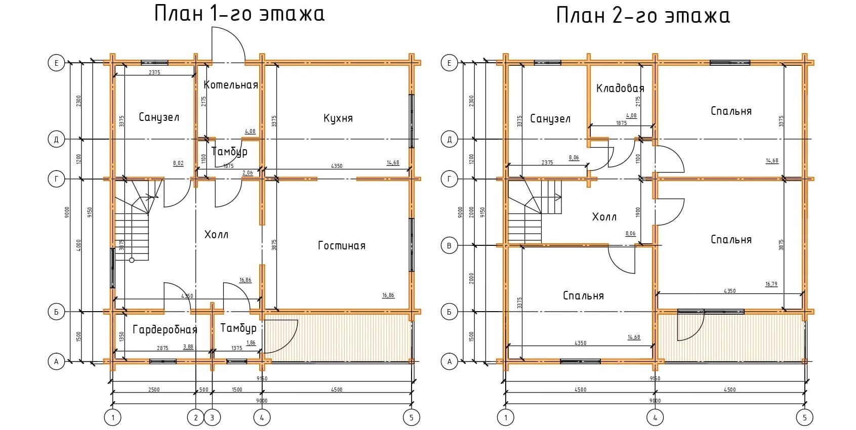
Тип строенияЖилой дом
-
МатериалБрус
-
Тип фундаментаНа винтовых сваях
-
Площадь162
-
Этажность1,5
-
Габариты9000х9000
-
БалконДа
-
Второй светНет
-
ГаражНет
-
МансардаДа
-
Сауна/БассейнНет
-
ТеррасаДа
-
Цокольный этажНет


