Проект предоставлен партнером:
"ООО "Солнечный - строительная компания" /
ssk54.ru/
Характеристики
-
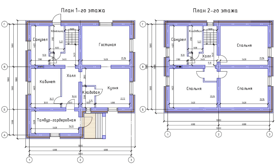
Тип строенияЖилой дом
-
МатериалКирпич
-
Тип фундаментаНа винтовых сваях
-
Площадь240
-
Этажность2
-
Габариты10000х12000
-
БалконНет
-
Второй светНет
-
ГаражНет
-
МансардаДа
-
Сауна/БассейнНет
-
ТеррасаНет
-
Цокольный этажНет

