Характеристики
-
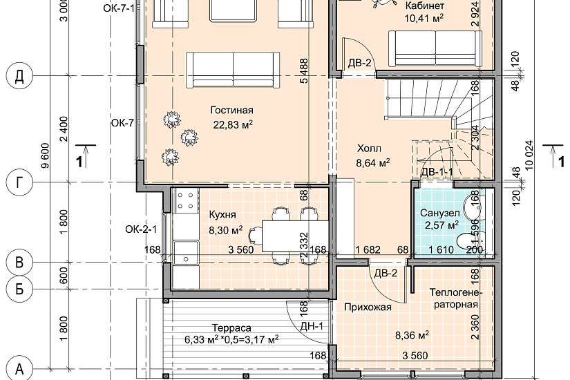
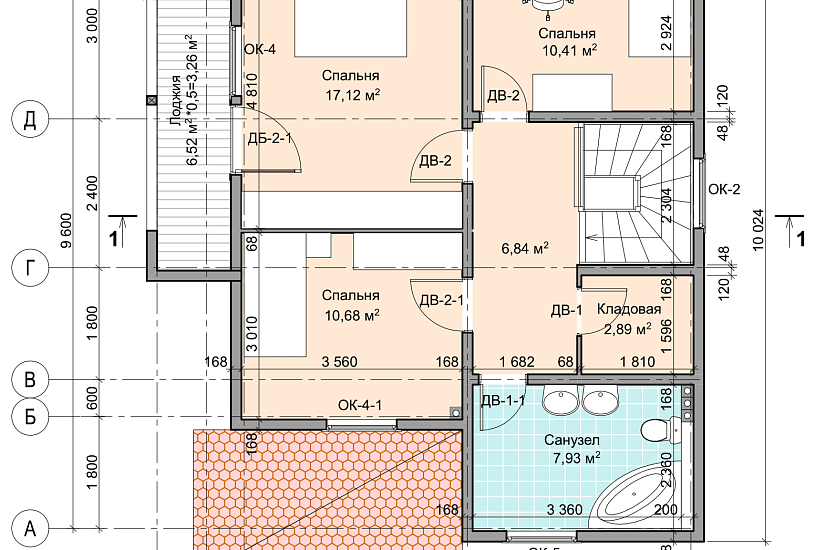
Тип строенияЖилой дом
-
МатериалКа-панель
-
Тип фундаментаНа винтовых сваях
-
Площадь130
-
Этажность2
-
Габариты9600х8600
-
БалконДа
-
Второй светНет
-
ГаражНет
-
МансардаНет
-
Сауна/БассейнНет
-
ТеррасаДа
-
Цокольный этажНет










