Проект предоставлен партнером:
РусьСтрой /
gkrus-stroy.ru/
Характеристики
-
Тип строенияБаня
-
МатериалПроф. брус
-
Тип фундаментаНа винтовых сваях
-
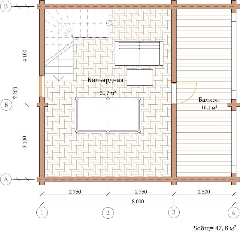
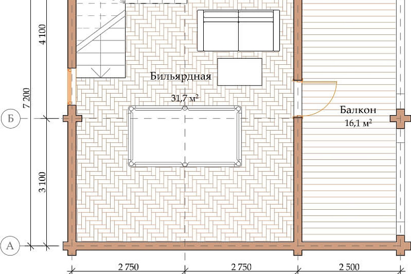
Площадь57,6
-
Этажность1,5
-
Габариты7200х8000
-
БалконДа
-
Второй светНет
-
ГаражНет
-
МансардаДа
-
Сауна/БассейнНет
-
ТеррасаДа
-
Цокольный этажНет




