Проект предоставлен партнером:
РусьСтрой /
gkrus-stroy.ru/
Характеристики
-
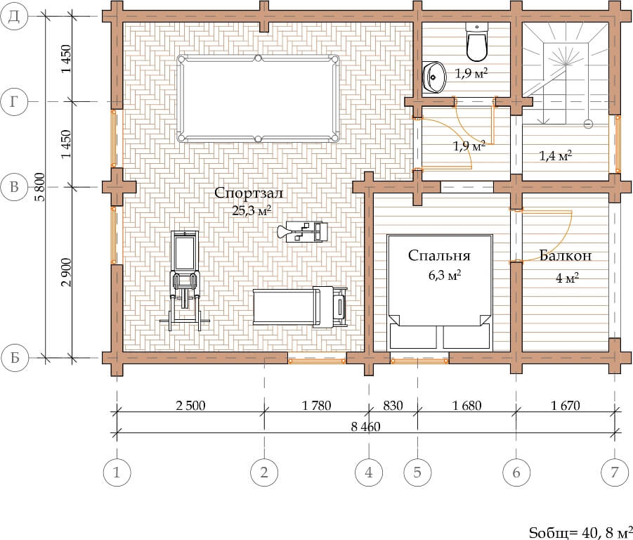
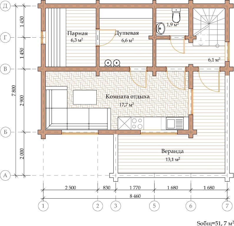
Тип строенияБаня
-
МатериалПроф. брус
-
Тип фундаментаНа винтовых сваях
-
Площадь95
-
Этажность1,5
-
Габариты7800х8460
-
БалконДа
-
Второй светНет
-
ГаражНет
-
МансардаДа
-
Сауна/БассейнНет
-
ТеррасаНет
-
Цокольный этажНет



