Проект предоставлен партнером:
РусьСтрой /
gkrus-stroy.ru/
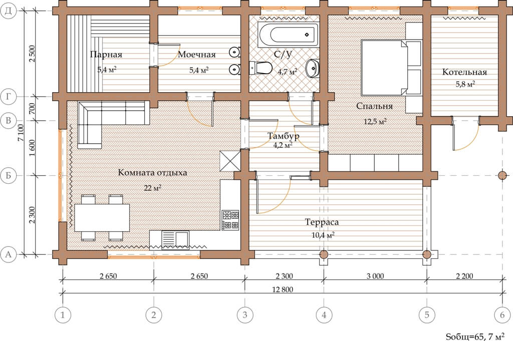
Характеристики
-
Тип строенияБаня
-
МатериалОцилиндрованное бревно
-
Тип фундаментаНа винтовых сваях
-
Площадь89,6
-
Этажность1
-
Габариты7100х12800
-
БалконНет
-
Второй светНет
-
ГаражНет
-
МансардаНет
-
Сауна/БассейнНет
-
ТеррасаДа
-
Цокольный этажНет



