Проект предоставлен партнером:
РусьСтрой /
gkrus-stroy.ru/
Характеристики
-
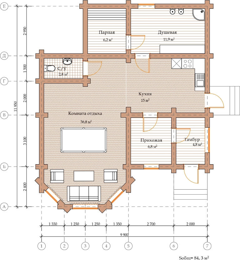
Тип строенияБаня
-
МатериалОцилиндрованное бревно
-
Тип фундаментаНа винтовых сваях
-
Площадь84
-
Этажность1
-
Габариты11950х9900
-
БалконНет
-
Второй светНет
-
ГаражНет
-
МансардаНет
-
Сауна/БассейнНет
-
ТеррасаНет
-
Цокольный этажНет




