Проект предоставлен партнером:
РусьСтрой /
gkrus-stroy.ru/
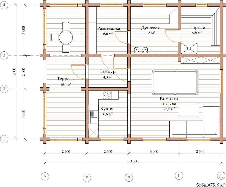
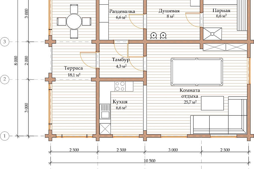
Характеристики
-
Тип строенияБаня
-
МатериалОцилиндрованное бревно
-
Тип фундаментаНа винтовых сваях
-
Площадь74
-
Этажность1
-
Габариты8000х10500
-
БалконНет
-
Второй светНет
-
ГаражНет
-
МансардаНет
-
Сауна/БассейнНет
-
ТеррасаДа
-
Цокольный этажНет


