Проект предоставлен партнером:
РусьСтрой /
gkrus-stroy.ru/
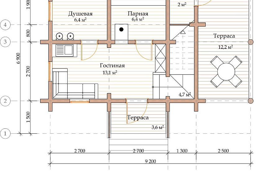
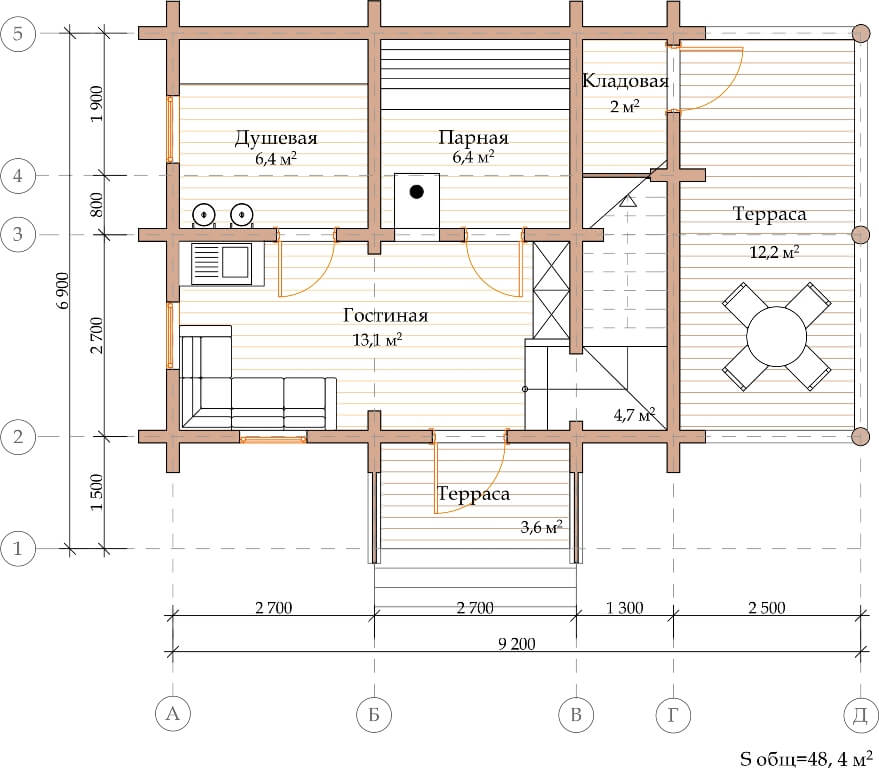
Характеристики
-
Тип строенияБаня
-
МатериалОцилиндрованное бревно
-
Тип фундаментаНа винтовых сваях
-
Площадь63,6
-
Этажность1,5
-
Габариты6900х9200
-
БалконНет
-
Второй светНет
-
ГаражНет
-
МансардаДа
-
Сауна/БассейнНет
-
ТеррасаДа
-
Цокольный этажНет




