Проект предоставлен партнером:
РусьСтрой /
gkrus-stroy.ru/
Характеристики
-
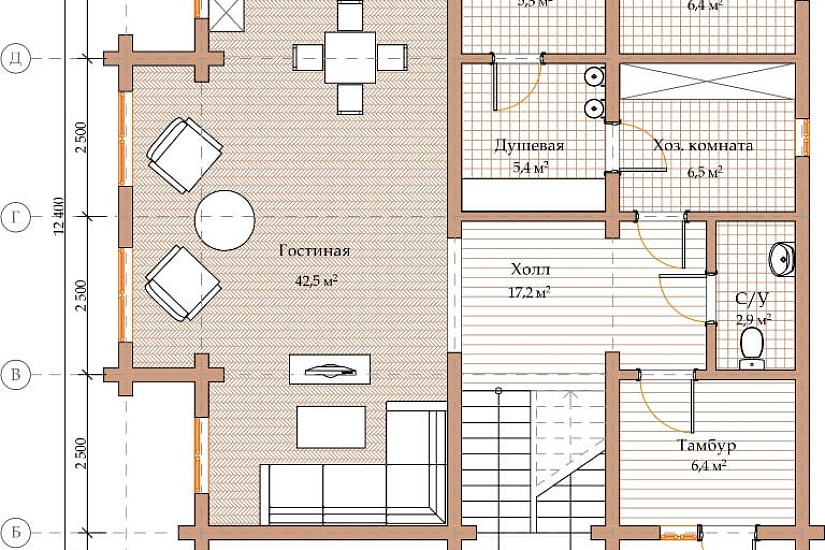
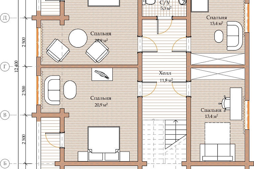
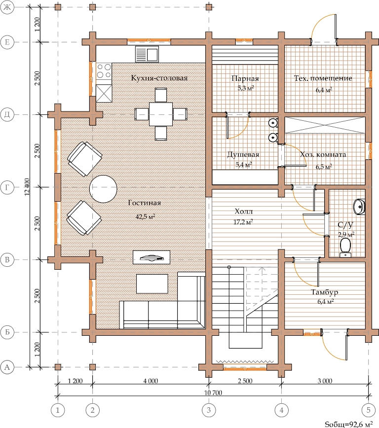
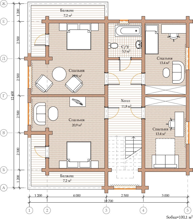
Тип строенияЖилой дом
-
МатериалПроф. брус
-
Тип фундаментаНа винтовых сваях
-
Площадь193
-
Этажность1,5
-
Габариты12400х10700
-
БалконДа
-
Второй светНет
-
ГаражНет
-
МансардаДа
-
Сауна/БассейнНет
-
ТеррасаНет
-
Цокольный этажНет




