Проект предоставлен партнером:
РусьСтрой /
gkrus-stroy.ru/
Характеристики
-
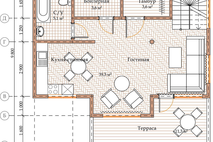
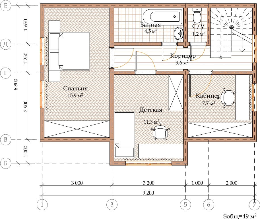
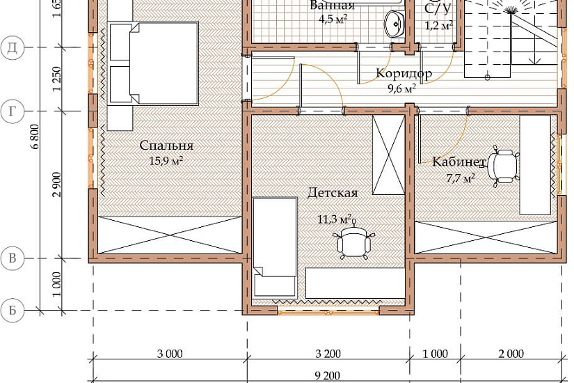
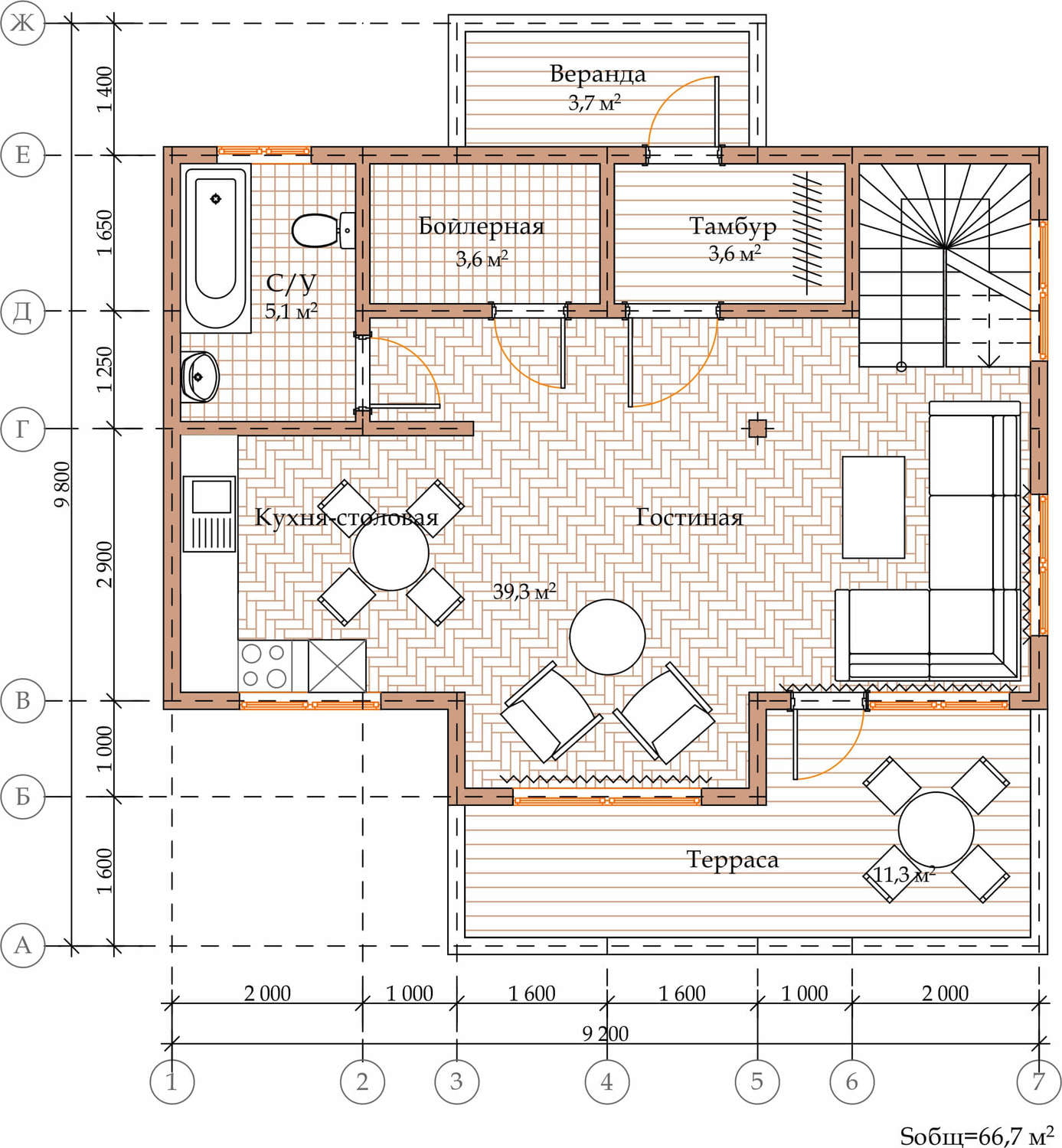
Тип строенияЖилой дом
-
МатериалПроф. брус
-
Тип фундаментаНа винтовых сваях
-
Площадь115
-
Этажность1,5
-
Габариты9800х9200
-
БалконНет
-
Второй светНет
-
ГаражНет
-
МансардаДа
-
Сауна/БассейнНет
-
ТеррасаДа
-
Цокольный этажНет




