Проект предоставлен партнером:
РусьСтрой /
gkrus-stroy.ru/
Характеристики
-
Тип строенияЖилой дом
-
МатериалОцилиндрованное бревно
-
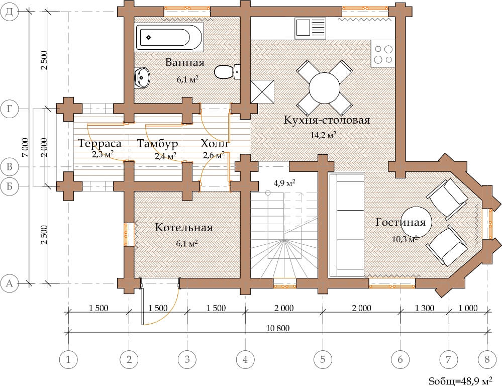
Тип фундаментаНа винтовых сваях
-
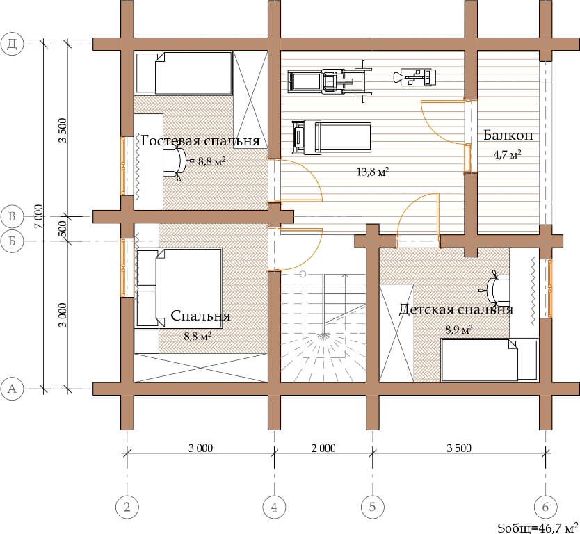
Площадь94
-
Этажность1,5
-
Габариты7000х10800
-
БалконДа
-
Второй светНет
-
ГаражНет
-
МансардаДа
-
Сауна/БассейнНет
-
ТеррасаДа
-
Цокольный этажНет




