Проект предоставлен партнером:
РусьСтрой /
gkrus-stroy.ru/
Характеристики
-
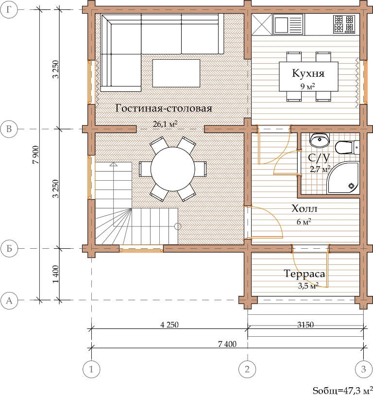
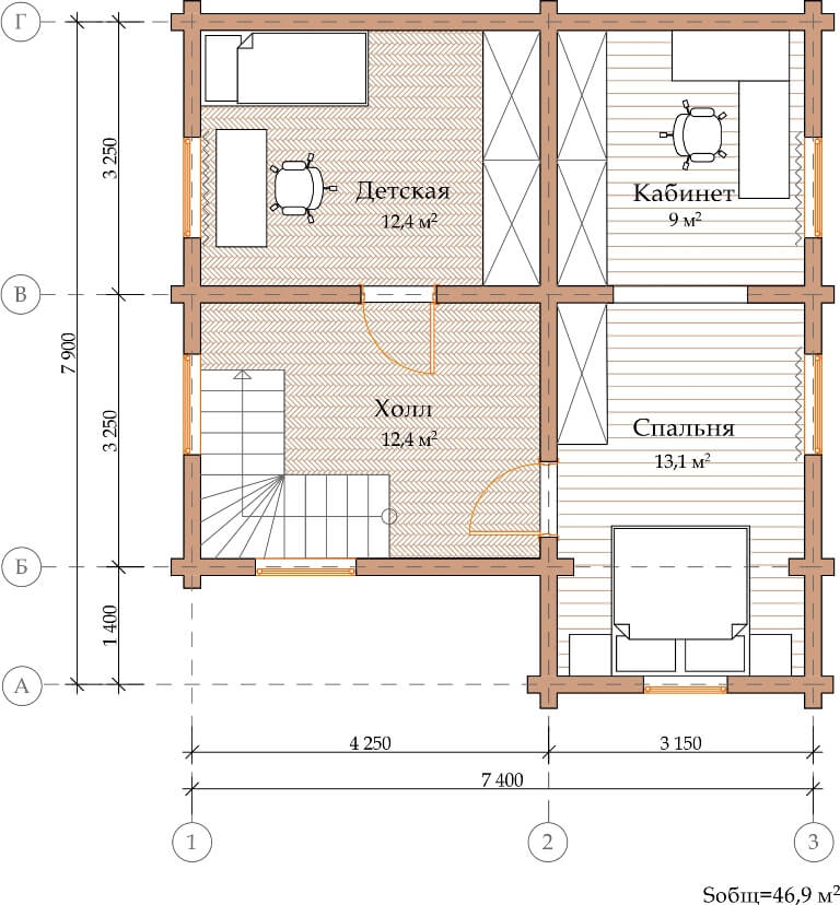
Тип строенияЖилой дом
-
МатериалОцилиндрованное бревно
-
Тип фундаментаНа винтовых сваях
-
Площадь94
-
Этажность1,5
-
Габариты7900х7400
-
БалконНет
-
Второй светНет
-
ГаражНет
-
МансардаДа
-
Сауна/БассейнНет
-
ТеррасаДа
-
Цокольный этажНет




