Проект предоставлен партнером:
РусьСтрой /
gkrus-stroy.ru/
Характеристики
-
Тип строенияЖилой дом
-
МатериалОцилиндрованное бревно
-
Тип фундаментаНа винтовых сваях
-
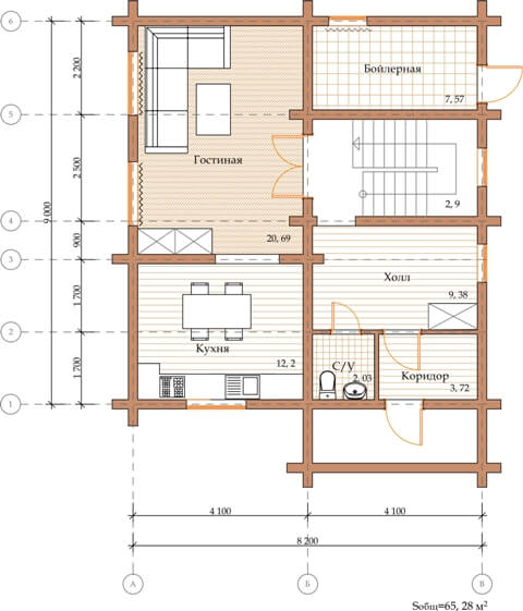
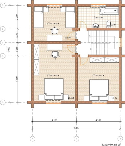
Площадь130
-
Этажность1,5
-
Габариты9000х8200
-
БалконНет
-
Второй светНет
-
ГаражНет
-
МансардаДа
-
Сауна/БассейнНет
-
ТеррасаНет
-
Цокольный этажНет




