Проект предоставлен партнером:
/
avgst.ru
Характеристики
-
Тип строенияЖилой дом
-
МатериалДеревянный каркас
-
Тип фундаментаНа винтовых сваях
-
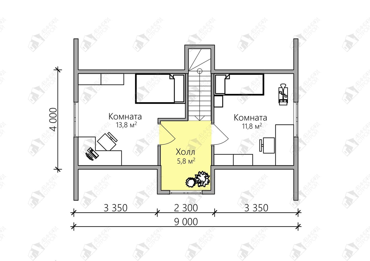
Площадь88
-
Этажность1
-
Габариты9000х6000
-
БалконНет
-
Второй светНет
-
ГаражНет
-
МансардаДа
-
Сауна/БассейнНет
-
ТеррасаДа
-
Цокольный этажНет


