Проект предоставлен партнером:
/
avgst.ru
Характеристики
-
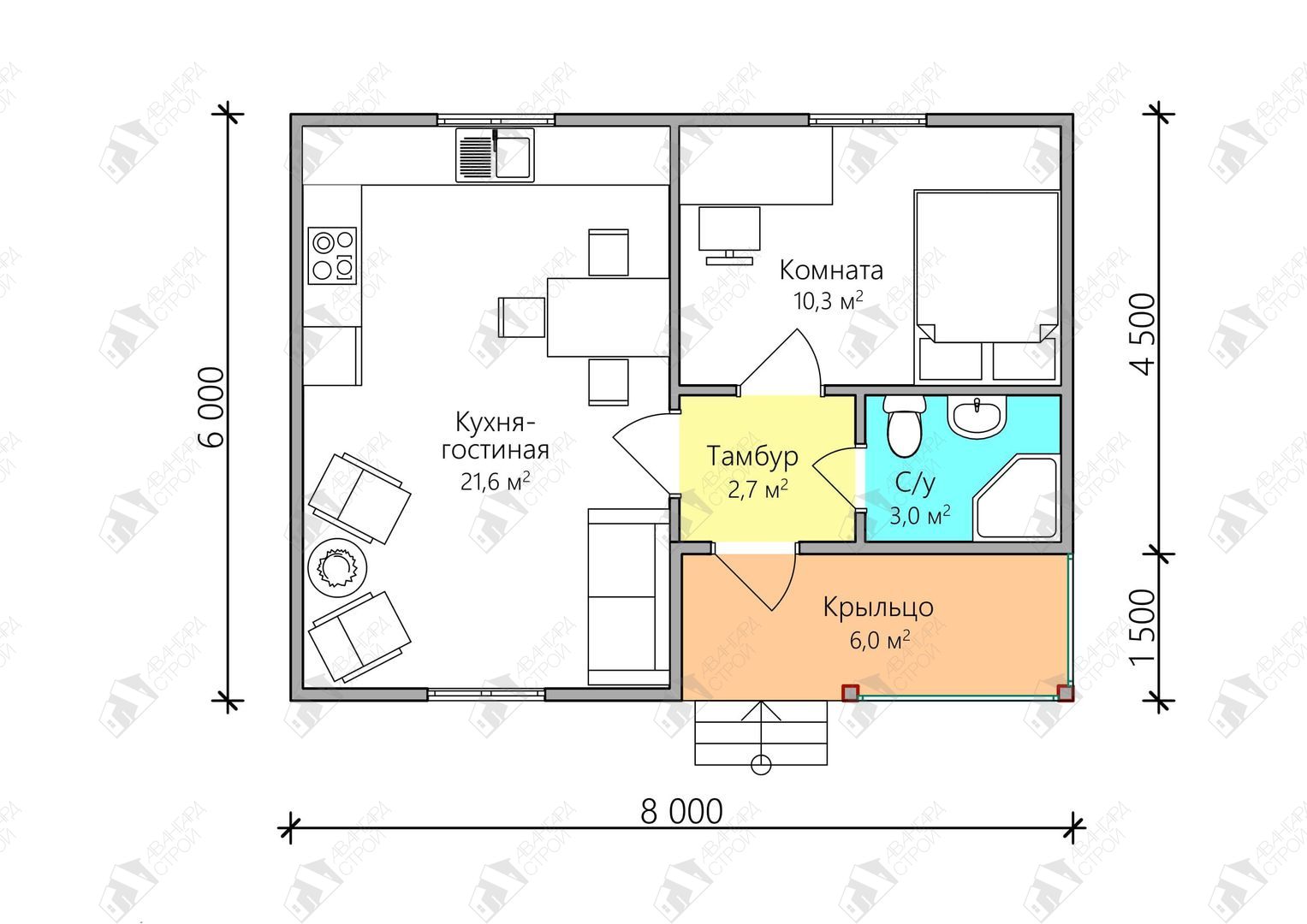
Тип строенияЖилой дом
-
МатериалДеревянный каркас
-
Тип фундаментаНа винтовых сваях
-
Площадь44
-
Этажность1
-
Габариты8000х6000
-
БалконНет
-
Второй светДа
-
ГаражНет
-
МансардаНет
-
Сауна/БассейнНет
-
ТеррасаНет
-
Цокольный этажНет

