Характеристики
-
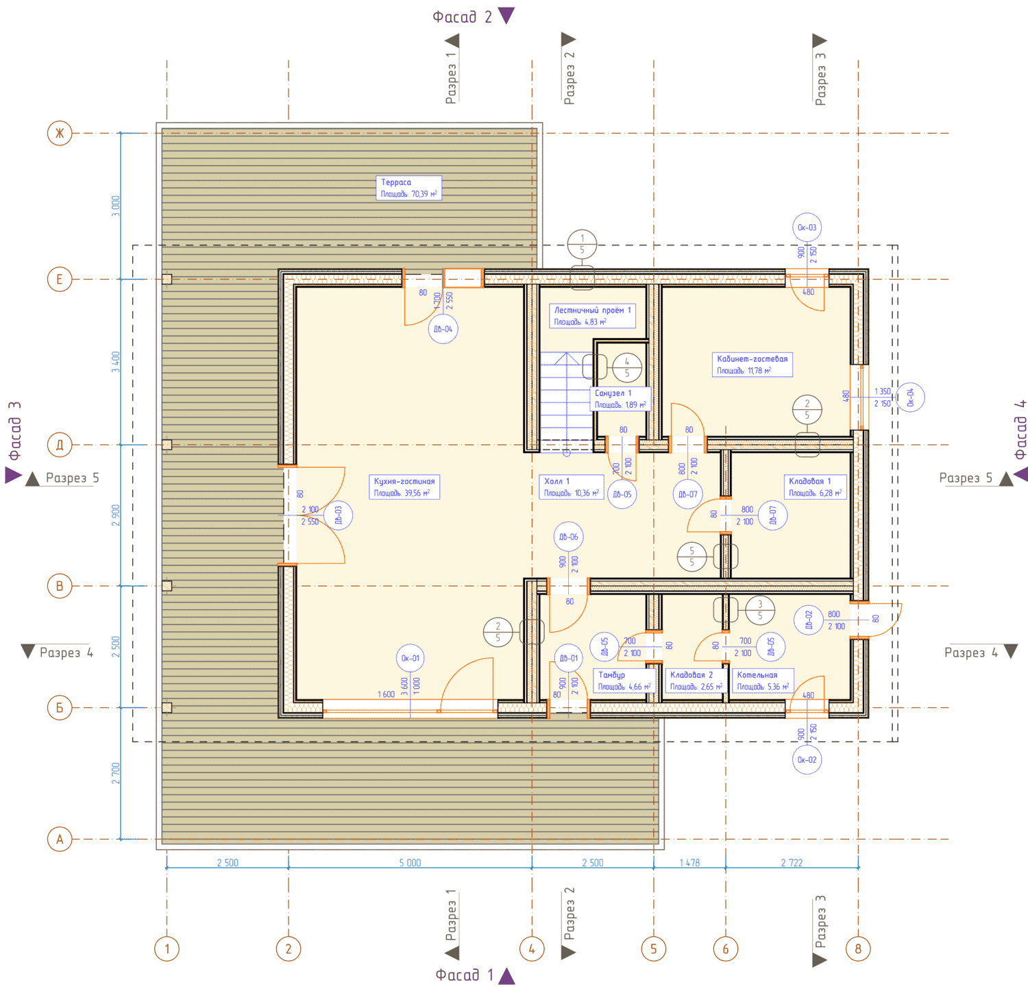
Тип строенияЖилой дом
-
МатериалДеревянный каркас
-
Тип фундаментаНа винтовых сваях
-
Площадь208
-
Этажность1,5
-
Габариты14500х14200
-
БалконНет
-
Второй светДа
-
ГаражНет
-
МансардаДа
-
Сауна/БассейнНет
-
ТеррасаДа
-
Цокольный этажНет









