Характеристики
-
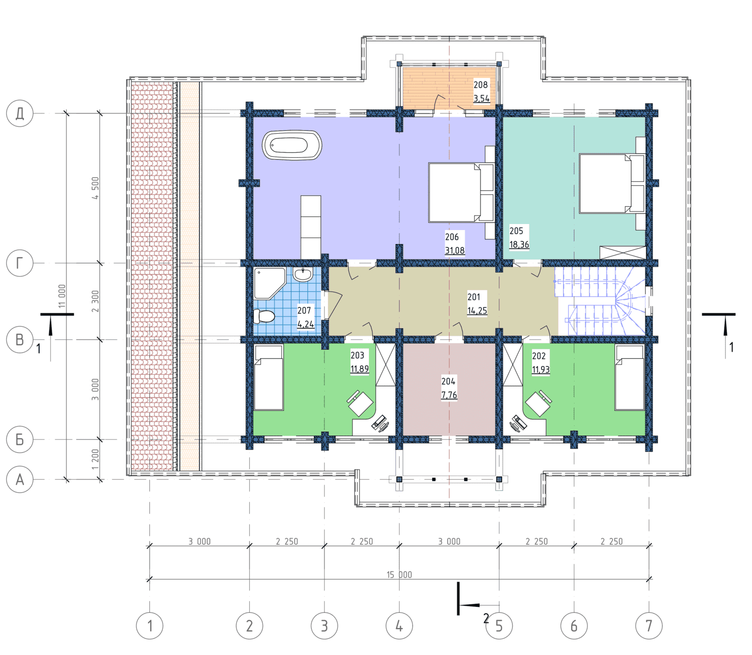
Тип строенияЖилой дом
-
МатериалДвойной брус
-
Тип фундаментаНа винтовых сваях
-
Площадь283
-
Этажность1,5
-
Габариты15000х14000
-
БалконДа
-
Второй светНет
-
ГаражНет
-
МансардаДа
-
Сауна/БассейнНет
-
ТеррасаДа
-
Цокольный этажНет








