Проект предоставлен партнером:
/
www.olimp164.ru/
Характеристики
-
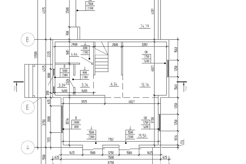
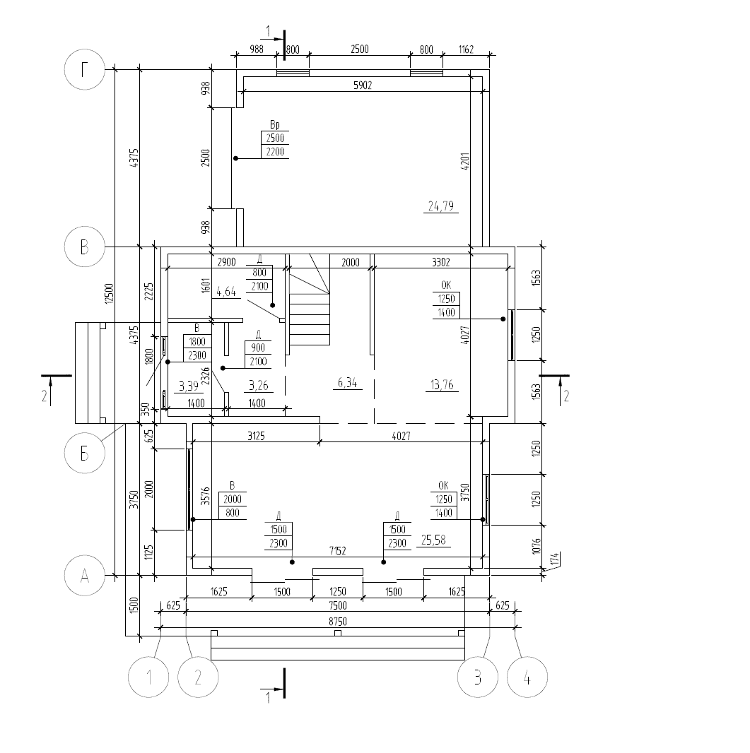
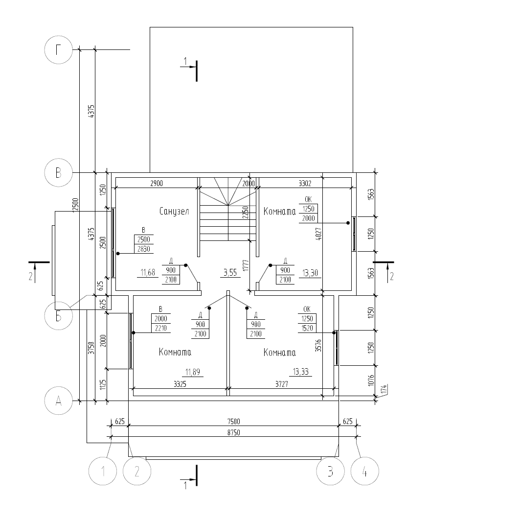
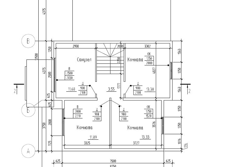
Тип строенияЖилой дом
-
МатериалSIP-панель
-
Тип фундаментаНа винтовых сваях
-
Площадь140
-
Этажность1,5
-
Габариты12500х8750
-
БалконНет
-
Второй светНет
-
ГаражДа
-
МансардаДа
-
Сауна/БассейнНет
-
ТеррасаДа
-
Цокольный этажНет


