Проект предоставлен партнером:
/
doma-n-bani.ru/
Характеристики
-
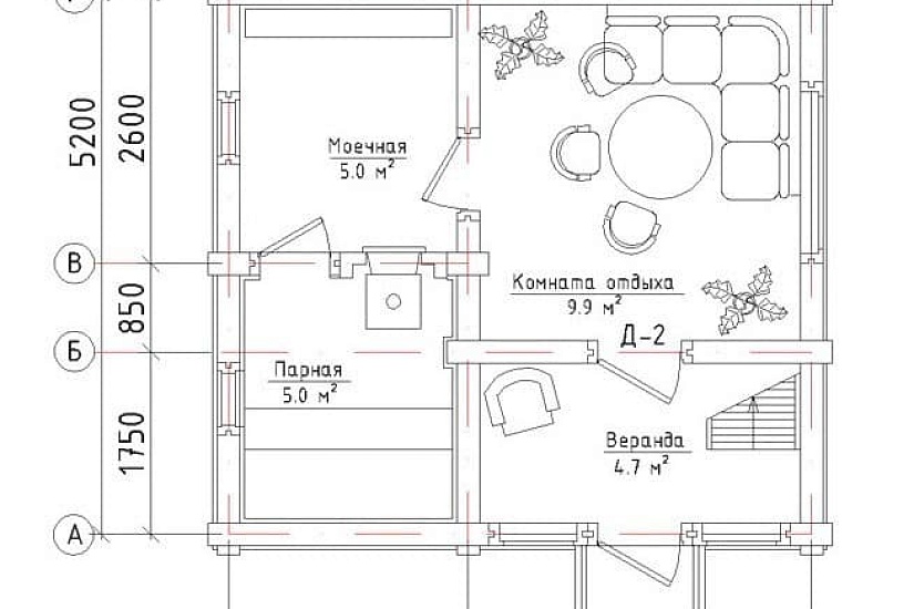
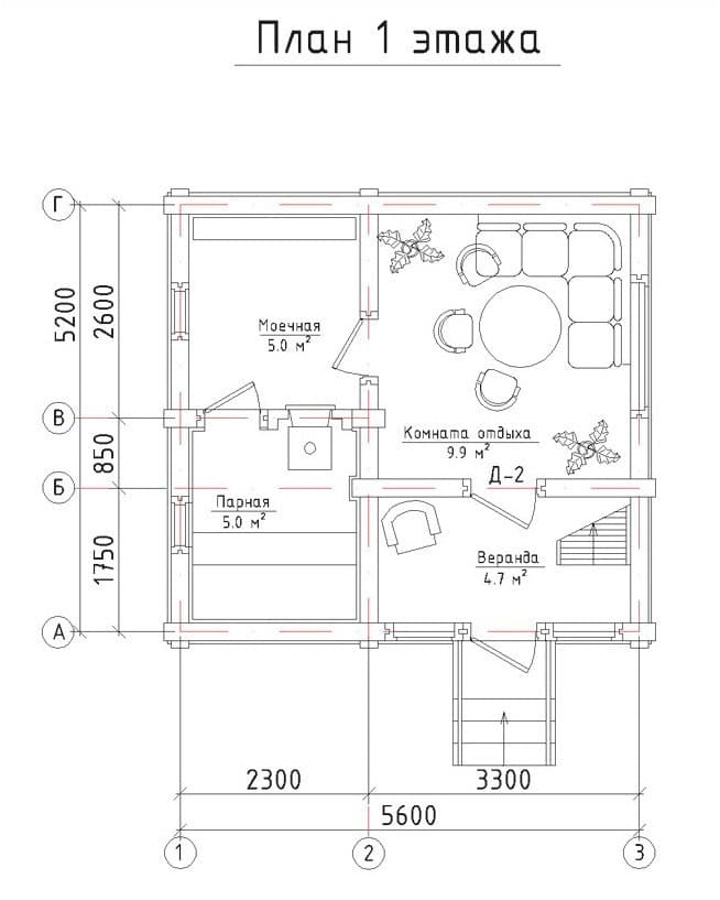
Тип строенияБаня
-
МатериалБревно
-
Тип фундаментаНа винтовых сваях
-
Площадь0.0
-
Этажность1,5
-
Габариты5200х5600
-
БалконНет
-
Второй светНет
-
ГаражНет
-
МансардаДа
-
Сауна/БассейнНет
-
ТеррасаНет
-
Цокольный этажНет


