Проект предоставлен партнером:
/
doma-n-bani.ru/
Характеристики
-
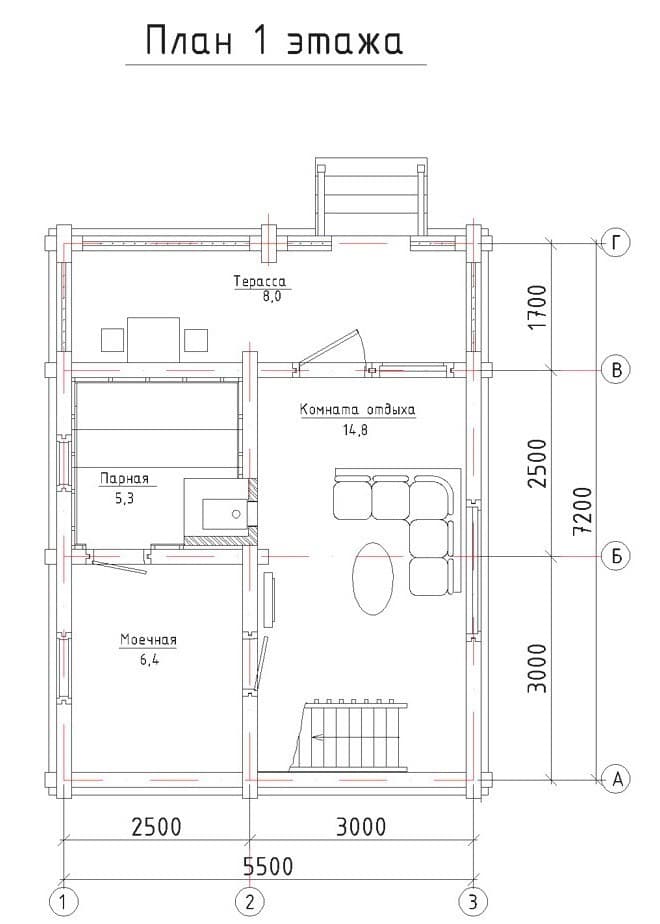
Тип строенияБаня
-
МатериалБревно
-
Тип фундаментаНа винтовых сваях
-
Площадь79
-
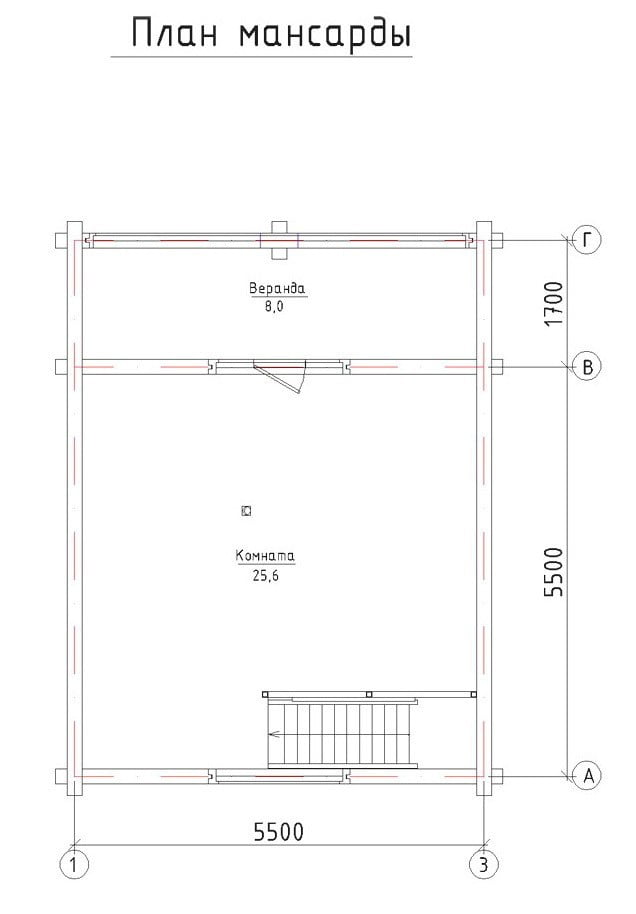
Этажность1,5
-
Габариты7200х5500
-
БалконНет
-
Второй светНет
-
ГаражНет
-
МансардаДа
-
Сауна/БассейнНет
-
ТеррасаДа
-
Цокольный этажНет


