Проект предоставлен партнером:
ЭкоДом /
www.ecodom-nsk.ru/
Характеристики
-
Тип строенияЖилой дом
-
МатериалКлееный брус
-
Тип фундаментаНа винтовых сваях
-
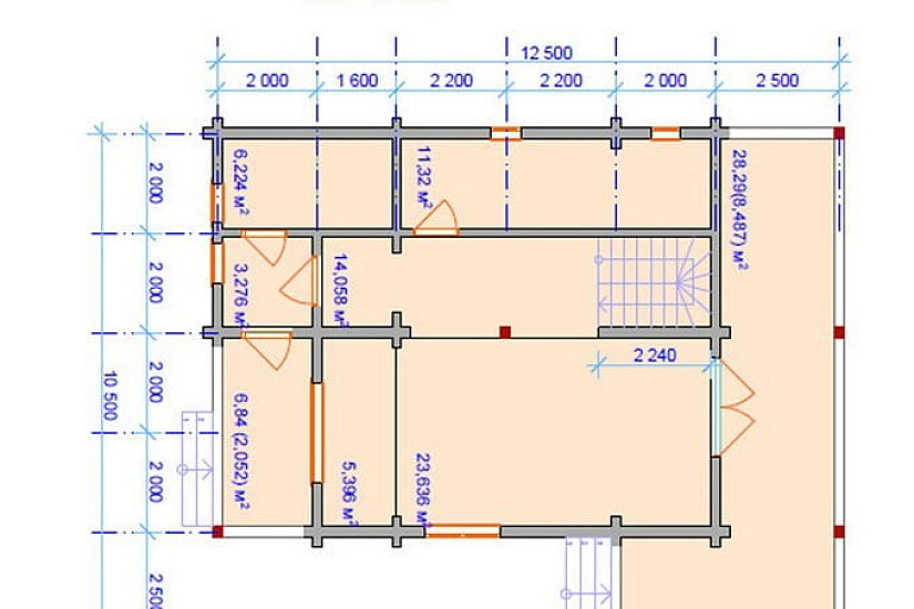
Площадь137
-
Этажность1,5
-
Габариты12500х10500
-
БалконДа
-
Второй светНет
-
ГаражНет
-
МансардаДа
-
Сауна/БассейнНет
-
ТеррасаДа
-
Цокольный этажНет





