Характеристики
-
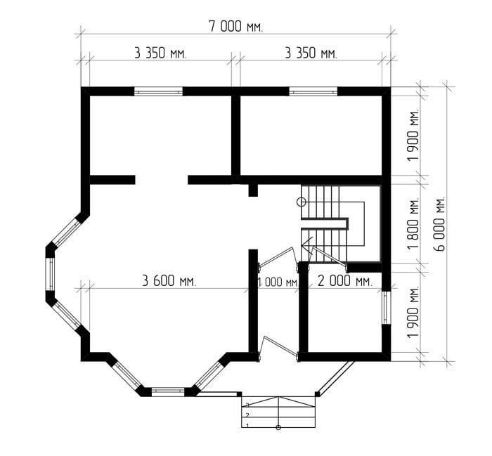
Тип строенияЖилой дом
-
МатериалПроф. брус
-
Тип фундаментаНа винтовых сваях
-
Площадь84
-
Этажность1,5
-
Габариты8000х7000
-
БалконНет
-
Второй светНет
-
ГаражНет
-
МансардаДа
-
Сауна/БассейнНет
-
ТеррасаНет
-
Цокольный этажНет






