Проект предоставлен партнером:
/
arplans.ru/
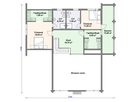
Характеристики
-
Тип строенияЖилой дом
-
МатериалБрус
-
Тип фундаментаНа винтовых сваях
-
Площадь287,60
-
Этажность1,5
-
Габариты16100х15000
-
БалконДа
-
Второй светДа
-
ГаражНет
-
МансардаДа
-
Сауна/БассейнНет
-
ТеррасаДа
-
Цокольный этажНет





