Проект предоставлен партнером:
/
arplans.ru/
Характеристики
-
Тип строенияЖилой дом
-
МатериалГазосиликат
-
Тип фундаментаЛенточный
-
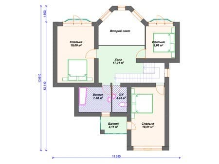
Площадь262,82
-
Этажность2
-
Габариты13610х11910
-
БалконДа
-
Второй светДа
-
ГаражДа
-
МансардаНет
-
Сауна/БассейнДа
-
ТеррасаДа
-
Цокольный этажДа





