Проект предоставлен партнером:
/
arplans.ru/
Характеристики
-
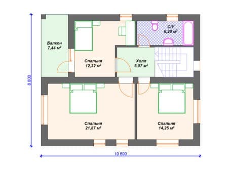
Тип строенияЖилой дом
-
МатериалГазосиликат
-
Тип фундаментаНа винтовых сваях
-
Площадь149,16
-
Этажность2
-
Габариты13300х8800
-
БалконДа
-
Второй светНет
-
ГаражНет
-
МансардаНет
-
Сауна/БассейнНет
-
ТеррасаДа
-
Цокольный этажНет





