Проект предоставлен партнером:
/
arplans.ru/
Характеристики
-
Тип строенияЖилой дом
-
МатериалГазосиликат
-
Тип фундаментаНа винтовых сваях
-
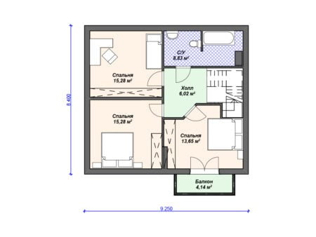
Площадь176,01
-
Этажность1,5
-
Габариты15050х10880
-
БалконДа
-
Второй светНет
-
ГаражДа
-
МансардаДа
-
Сауна/БассейнНет
-
ТеррасаДа
-
Цокольный этажНет





