Проект предоставлен партнером:
/
uralekodom.ru
Характеристики
-
Тип строенияЖилой дом
-
МатериалКлееный брус
-
Тип фундаментаНа винтовых сваях
-
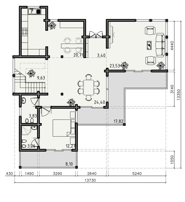
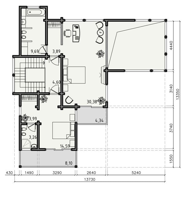
Площадь210
-
Этажность2
-
Габариты13,73х13,35
-
БалконДа
-
Второй светДа
-
ГаражНет
-
МансардаНет
-
Сауна/БассейнНет
-
ТеррасаДа
-
Цокольный этажДа






