Проект предоставлен партнером:
/
uralekodom.ru
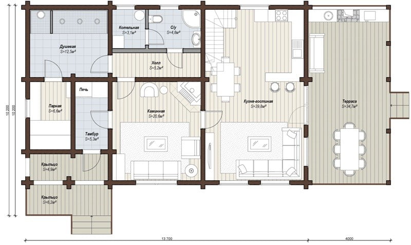
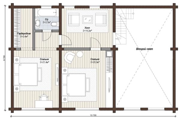
Характеристики
-
Тип строенияЖилой дом
-
МатериалКлееный брус
-
Тип фундаментаНа винтовых сваях
-
Площадь208
-
Этажность1,5
-
Габариты10,2х17,7
-
БалконНет
-
Второй светДа
-
ГаражНет
-
МансардаДа
-
Сауна/БассейнНет
-
ТеррасаДа
-
Цокольный этажНет






